ClickCase.it

Monolocale (D) Residenza "Gli Arcangeli"

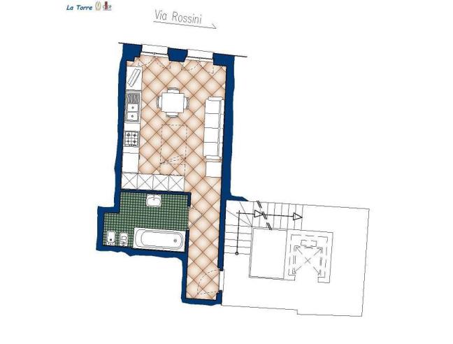
Appartamento in Vendita da Privato - Canelli

36 m² | 1 locale | 1 bagno | € 40.000 | Segnala abuso

Descrizione

No intermediari. Vendesi monolocale completamente ristrutturato a nuovo a fine 2006 composto da una camera, servizi e corridoio di disimpegno. L'immobile si presenta con finiture di pregio, servito da ascensore, riscaldamento autonomo e parabola satellitare; inoltre presenta spese condominiali minime.
Classe energetica B 74,96 kWh/m²a

Video

Caratteristiche

Stato: Ristrutturato
Anno costruzione: 2006
Piano: 1
Bagni: 1
Riscaldamento: Autonomo
Arredamento: Vuoto
Ascensore: Si
Balcone/Terrazzo: No
Cantina: No
Classe energetica: Classe Energetica B
IPE: 74,96 kWh/m²a

Contatti

Inserzionista Mariella Pancot
Aggiornato il 11 dicembre 2025

Invia un messaggio all'inserzionista

Casa Da Privato
La tua pubblicitĂ  qui, contattaci subito!

© 2005-2026 LaboWeb S.n.c. - P. Iva 10185480968
L'utilizzo del sito è subordinato all'accettazione delle Condizioni Generali, Informativa Privacy e Cookie Privacy - Impostazioni Privacy