ClickCase.it

Metà villa duplex del 1918 a 20 minuti da Radda in Chianti

Villa in Vendita da Privato - Cavriglia

320 m² | più di 5 locali | 3 bagni | € 480.000 | Segnala abuso

Descrizione

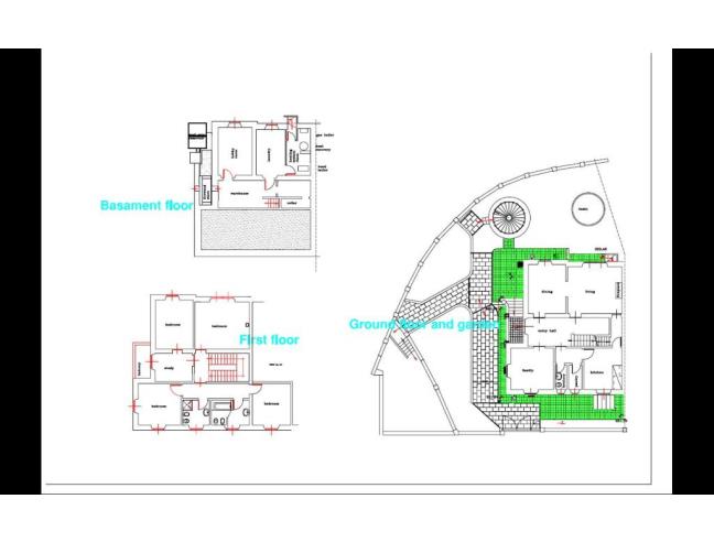
Vendita da privato. Prezzo ribassato in febbraio 2014. Spaziosa e comoda casa con giardino privato e due garage, sita a 220 m s.l.m. sul versante est delle colline del Chianti. In un tranquillo piccolo gruppo di case prospiciente un lago ed al limite di un'area selvaggia (da anni popolata da copiosa e varia flora e fauna selvatica). A 40'-50' da Firenze, Arezzo, o Siena; a 5' dai servizi essenziali; a 15' di bus dalla stazione ferroviaria; 60' dall'aeroporto di Fi. Nei pressi, avio superficie, nascente club del golf, altri due laghi. Il sito offre possibilità di sviluppo di attività di tempo libero e turismo. PT: ingresso, 3 sale, cucina, toilette, ripostiglio; P1: 4 camere, studio, 2 bagni; Seminterrato: 4 vani. Caldaia a condensazione e caldaia a legna con recupero. Gazebo, barbecue, riserva acqua piovana.
Consumo energetico calcolato: 159,00 kWh/m²/a (disponibili fatture che dimostrano un consumo annuo di gas di circa 2.450 Nmc senza integrazione della caldaia a legna e con programma: lun-ven, 6:30-9:00, t=20°C; 17:00-2:00, t=21°C; sab-dom, 6:30-16:00, t=20°, 17:30-2:00, t=21°.
Classe energetica G 159,00 kWh/m²a

Video

Caratteristiche

Stato: Abitabile
Anno costruzione: 1918
Piano: Su più livelli
Totale piani: 3
Cucina: Abitabile
Bagni: 3
Giardino: Privato
Camere da letto: 4
Riscaldamento: Autonomo
Climatizzazione: No
Arredamento: Vuoto
Ascensore: No
Balcone/Terrazzo: Balcone
Box/Posto Auto: Doppio
Cantina: Si
Classe energetica: Classe Energetica G
IPE: 159,00 kWh/m²a

Contatti

Inserzionista antonio magnanini
Aggiornato il 07 luglio 2025

Invia un messaggio all'inserzionista

Casa Da Privato
La tua pubblicità qui, contattaci subito!

© 2005-2025 LaboWeb S.n.c. - P. Iva 10185480968
L'utilizzo del sito è subordinato all'accettazione delle Condizioni Generali, Informativa Privacy e Cookie Privacy - Impostazioni Privacy