ClickCase.it

Luminoso trilocale con Mansarda, 2 Box Auto e cantina

Appartamento in Vendita da Privato - Via C. Armellini 13, Cinisello Balsamo

186 m² | 3 locali | 3 bagni | € 500.000 | Segnala abuso

Descrizione

Privato vende. In un contesto residenziale tranquillo e riservato, costituito da un complesso di quattro palazzine con mattoni a vista di soli due piani, proponiamo in vendita uno splendido appartamento situato al secondo ed ultimo piano.

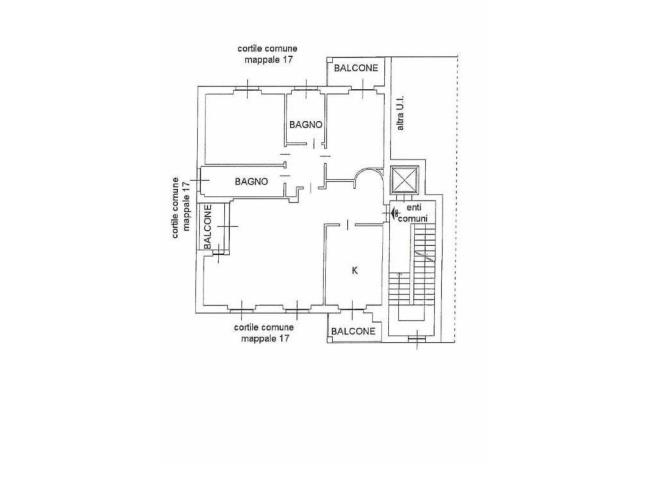
L'immobile, in ottime condizioni generali, si apre su una zona giorno accogliente e funzionale: troviamo una sala spaziosa e molto luminosa con accesso diretto a uno dei balconi, e una cucina abitabile separata, ideale per chi ama vivere la convivialità, con affaccio sul secondo balcone.

La zona notte è composta da due camere da letto, di cui una con affaccio sul terzo balcone, e due bagni finestrati, uno dotato di vasca per il relax e l'altro di un comodo box doccia.

Punto di forza dell'immobile è la presenza di una mansarda adibita a zona lavanderia/hobby, che aggiunge spazio prezioso alla metratura.

Le finiture includono infissi in legno con doppio vetro, garantendo un ottimo isolamento termico e acustico, pavimentazione in marmo nella zona giorno e parquet nelle due camere da letto.

La proprietà è completata da una cantina e ben due box auto, una rarità che risolve ogni problema di parcheggio e stoccaggio.

Soluzione perfetta per famiglie alla ricerca di spazi ampi, tranquillità e nessuna spesa di ristrutturazione imminente.

La zona è ben servita infatti è possibile raggiungere a piedi l'Esselunga, l'Unes, la farmacia e il Parco Nord e a pochi metri si trova la fermata dell'autobus linea 728 e 729.

Nel prezzo è compreso un box, con la possibilità di acquistare il secondo a 25.000 Euro

Caratteristiche

Stato: Abitabile
Piano: 2
Totale piani: 2
Bagni: 3
Camere da letto: 2
Riscaldamento: Autonomo
Arredamento: Semi-arredato
Ascensore: Si
Balcone/Terrazzo: Balcone
Box/Posto Auto: Doppio
Cantina: Si

Contatti

Inserzionista giuseppe
Aggiornato il 03 marzo 2026

Invia un messaggio all'inserzionista

Casa Da Privato
La tua pubblicitĂ  qui, contattaci subito!

© 2005-2026 LaboWeb S.n.c. - P. Iva 10185480968
L'utilizzo del sito è subordinato all'accettazione delle Condizioni Generali, Informativa Privacy e Cookie Privacy - Impostazioni Privacy