ClickCase.it

Lotto di terreno edificabile con progetto approvato

Altro in Vendita da Privato - Zona San Miniato Basso, San Miniato

360 m² | più di 5 locali | € 87.000 | Segnala abuso

Descrizione

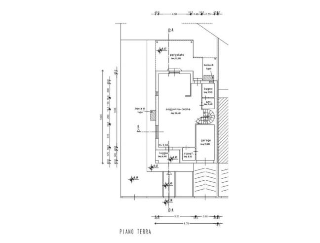
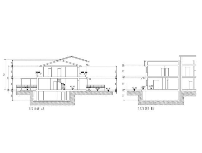
No provvigioni. Vendesi lotto di terreno di superficie complessiva di 360mq di qui 220mq edificabili, con progetto e permesso a costruire approvato a Febbraio 2014, oneri e spese varie gia pagate per circa 12000 euro. Il progetto prevede la costruzione di un fabbricato unifamiliare libero su tre lati, composto da piano terra, piano primo, piano interrato e soffitta per una superficie utile abitabile di 129mq, 79mq di logge, balconi, porticati ed androni e 43mq di locale di sgombero al piano interrato. Il progetto è stato studiato per la realizzazione di una casa in bioedilizia in legno; se interessati posso fornire i vari preventivi da me richiesti per la realizzazione al “grezzo avanzato”.
Il lotto si trova nelle vicinanze della stazione ferroviaria di San Miniato Basso, a due chilometri dal centro e da tutti i servizi e a circa un chilometro all'accesso alla superstrada FI-PI-LI.
Per maggiori informazioni rimango a disposizione: cell Giacomo
Immobile non soggetto all'obbligo di certificazione energetica

Video

Caratteristiche

Classe energetica: Immobile non soggetto all'obbligo di certificazione energetica

Contatti

Inserzionista Giacomo
Aggiornato il 30 settembre 2025

Invia un messaggio all'inserzionista

Casa Da Privato
La tua pubblicità qui, contattaci subito!

© 2005-2025 LaboWeb S.n.c. - P. Iva 10185480968
L'utilizzo del sito è subordinato all'accettazione delle Condizioni Generali, Informativa Privacy e Cookie Privacy - Impostazioni Privacy