ClickCase.it

Locale commerciale Via Corsica - Via Valverde

Negozio in Affitto da Privato - Via Corsica 1, Iglesias

93 m² | 2 locali | 1 bagno | € 800 mensili | Segnala abuso

Descrizione

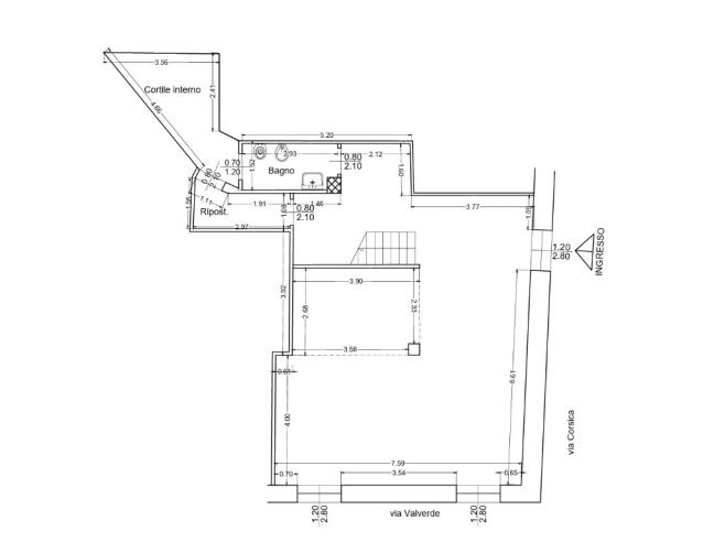
No intermediari. Affitto locale commerciale tra via Corsica e via Valverde, vicino piazza sella. Con una superficie di 93 mq catastali. L'ingresso vetrato è situato in via Corsica mentre due vetrine si affacciano in Via Valverde lato piazza Sella. Il locale è dotato di un bagno, di un ripostiglio, di un soppalco, e un cortile esterno. Ape in fase di elaborazione. Non voglio essere contattato da Agenzie.
Immobile non soggetto all'obbligo di certificazione energetica

Caratteristiche

Stato: Ristrutturato
Piano: Piano terra
Bagni: 1
Riscaldamento: Assente
Climatizzazione: No
Arredamento: Vuoto
Ascensore: No
Classe energetica: Immobile non soggetto all'obbligo di certificazione energetica

Contatti

Inserzionista Gabriele
Annuncio del 25 marzo 2026

Invia un messaggio all'inserzionista

La tua pubblicità qui, contattaci subito!

© 2005-2026 LaboWeb S.n.c. - P. Iva 10185480968
L'utilizzo del sito è subordinato all'accettazione delle Condizioni Generali, Informativa Privacy e Cookie Privacy - Impostazioni Privacy