ClickCase.it

Libero ampio trilocale con doppi servizi ristrutturato

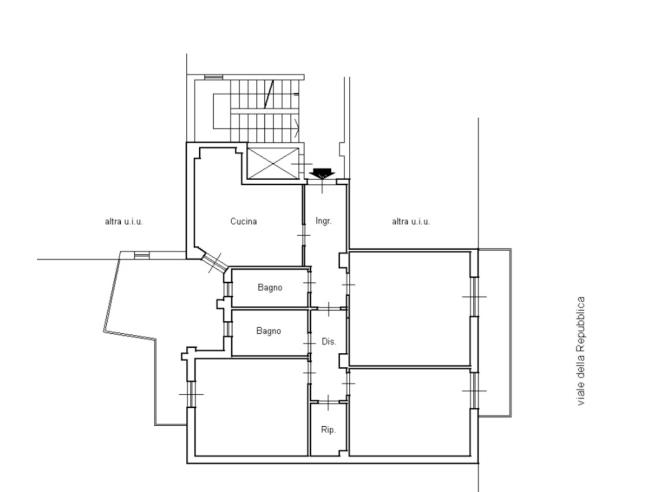
Appartamento in Vendita da Privato - Zona San Pasquale, Bari

100 m² | 3 locali | 2 bagni | € 330.000 | Segnala abuso

Descrizione

Vendita da privato. Situato nella zona prospiciente il Parco di Largo 2 Giugno, libero, ampio e luminoso appartamento di 100 mq netti , composto da 3 vani, 2 bagni entrambi con finestra, cucina molto ampia, disimpegno, ripostiglio e zona lavanderia. L'immobile dispone di un ampio balcone con affaccio su V.le della Repubblica, sul cortile interno si affaccia il balcone terrazzato a cui si accede dalla cucina. L' immobile è stato interamente e finemente ristrutturato 6 anni fa con rivestimenti in gres porcellanato, porte ad incasso Scrigno, rifacimento di tutti impianti, infissi con triplo vetro a camera, tapparelle elettriche, zanzariere, aria condizionata, impianto di allarme e videocitofono, termo autonomo. Lo stabile è stato ristrutturato interamente lo scorso anno con anche la sostituzione dell' ascensore.

Caratteristiche

Stato: Ristrutturato
Cucina: Abitabile
Bagni: 2
Giardino: Nessuno
Riscaldamento: Autonomo
Climatizzazione: Si
Ascensore: Si
Balcone/Terrazzo: Terrazzo

Contatti

Inserzionista Lorusso
Aggiornato il 02 gennaio 2026

No contatti pubblicitari, grazie.

Invia un messaggio all'inserzionista

La tua pubblicitĂ  qui, contattaci subito!

© 2005-2026 LaboWeb S.n.c. - P. Iva 10185480968
L'utilizzo del sito è subordinato all'accettazione delle Condizioni Generali, Informativa Privacy e Cookie Privacy - Impostazioni Privacy