ClickCase.it

Immobile indipendente su 4 piani

Casa indipendente in Vendita da Privato - Via Feudo 162, Riccia

600 m² | più di 5 locali | più di 5 bagni | € 290.000 | Segnala abuso

Descrizione

Vendita da privato. -- NO PERDITEMPO -- NO CURIOSI ---

-- NO AD OFFERTE RIDICOLE --

-- E' IN VENDITA L'INTERO IMMOBILE, NON SI VENDONO APPARTAMENTI / LOCALI SEPARATAMENTE --


Privato vende immobile di 4 piani sito a Riccia, via Feudo n. 162 composto come segue

Piano Terra

Locale di circa 220 Mq (165 Mq locale uso magazzino, 35 Mq Ufficio, 20 mq Servizi).
Attualmente locato


Piano 1

Appartamenti di circa 110 Mq composto da :
ingresso, soggiorno, cucina abitabile e retrocucina, due camere matrimoniali, altro grande ripostiglio, bagno, balcone.
E' inoltre presente, con due ingressi independenti, una ampia stanza di circa 20 MQ ad uso rispostiglio/studio.
Attualmente locato


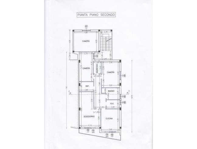
Piano 2

Appartamenti di circa 115 Mq composto da :
Ingresso, soggiorno, cucina abitabile con termocamino e ripostiglio, due camere matrimoniali,altro grande ripostiglio, bagno, balcone.
E' inoltre presente, con un ingresso independente, una ampia stanza di circa 21 MQ ad uso camera matrimoniale/studio.
Attualmente locato


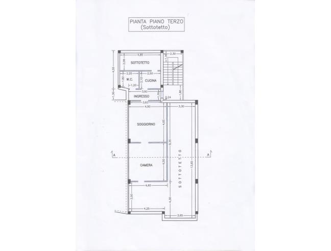
Piano 3

Mansardina di circa 60 Mq con cucina, soggiorno, camera matrimoniale, bagno e circa 50Mq di sottotetto praticabile uso ripostiglio.



Sono inoltre presenti un parcheggio privato di circa 25 MQ e una ampia terrazza ad uso comune.

Completano la proprietà circa 1300 MQ di terreno seminativo e un fabbricato rurale (area fabbricabile) di circa 50MQ

Sono stati completati da poco i lavori di rifacimento del tetto e della facciata.

RICHIESTI 290.000 EURO leggermente trattabili.
Immobile non soggetto all'obbligo di certificazione energetica

Caratteristiche

Stato: Ristrutturato
Anno costruzione: 1985
Piano: Su più livelli
Totale piani: 4
Cucina: Abitabile
Bagni: più di 5
Giardino: Privato
Camere da letto: più di 5
Riscaldamento: Autonomo
Climatizzazione: No
Arredamento: Vuoto
Ascensore: No
Balcone/Terrazzo: Terrazzo
Box/Posto Auto: Doppio
Cantina: Si
Classe energetica: Immobile non soggetto all'obbligo di certificazione energetica

Contatti

Inserzionista Donato
Aggiornato il 20 dicembre 2025

No contatti pubblicitari, grazie.

Invia un messaggio all'inserzionista

Casa Da Privato
La tua pubblicità qui, contattaci subito!

© 2005-2026 LaboWeb S.n.c. - P. Iva 10185480968
L'utilizzo del sito è subordinato all'accettazione delle Condizioni Generali, Informativa Privacy e Cookie Privacy - Impostazioni Privacy