Immobile con annesso terreno agricolo - Prezzo affare

San Vincenzo la Costa, Palazzello - Vendita da Privato

  • Rustico/Casale in Vendita da Privato - Zona Palazzello, San Vincenzo la Costa

    645 m² | più di 5 locali | 4 bagni | € 139.000

    Vendita da privato. Vendesi immobile sito in località Palazzello nel comune di San Vincenzo la Costa e si sviluppa su di un piano seminterrato, un piano superiore e un piano mansarda tutti ad uso abitativo.
    L'immobile comprende una corte di pertinenza di circa 4.000 mq (ad uso agricolo) a cui si accede tramite cancello elettrico; è dotato di doppi servizi per piano, di predisposizione per il riscaldamento autonomo e di un camino a legna annesso ad un forno anch'esso a legna. Gli affacci sono posti sui quattro lati mediante finestre e balconi.
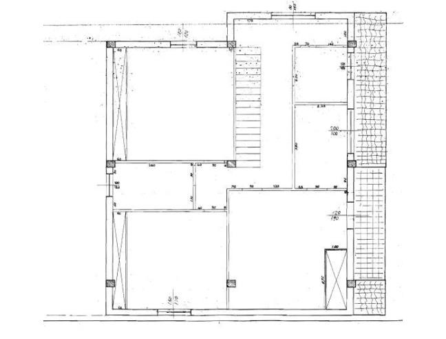
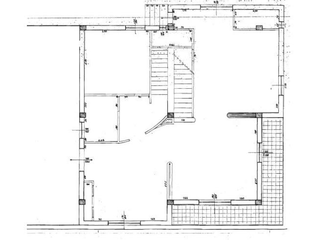
    Il piano seminterrato è composto da: autorimessa con due ingressi, una cucina, una camera da letto, un soggiorno con disimpegno, un WC rifinito, una centrale termica con autoclave.
    Al piano superiore, non rifinito, è previsto: un soggiorno, una cucina, un ripostiglio, due stanze da letto, due WC (di cui uno completamente rifinito).
    Il piano mansarda, completamente rifinito, è composto da: tre stanze da letto e due WC (rifiniti di Lusso).
    L'unità abitativa primo piano più mansarda comprende balconi perimetrali e un terrazzo.
    La superficie totale dell'abitazione è di circa 645 mq.
    Classe energetica B


Caratteristiche
Stato: Abitabile
Totale piani: 2
Cucina: Abitabile
Bagni: 4
Giardino: Privato
Camere da letto: 4
Riscaldamento: Autonomo
Climatizzazione: No
Arredamento: Vuoto
Ascensore: No
Balcone/Terrazzo: Terrazzo
Box/Posto Auto: Doppio
Cantina: Si
Classe energetica: Classe Energetica B

Contatti

Invia un messaggio all'inserzionista

Inserzionista Saverino De Leo
Aggiornato il 28 agosto 2025

Segnala abuso