ClickCase.it

Grande e luminoso appartamento in Viale Strasburgo 253

Appartamento in Vendita da Privato - Viale Strasburgo 253, Palermo

162 m² | più di 5 locali | € 295.000 | Segnala abuso

Descrizione

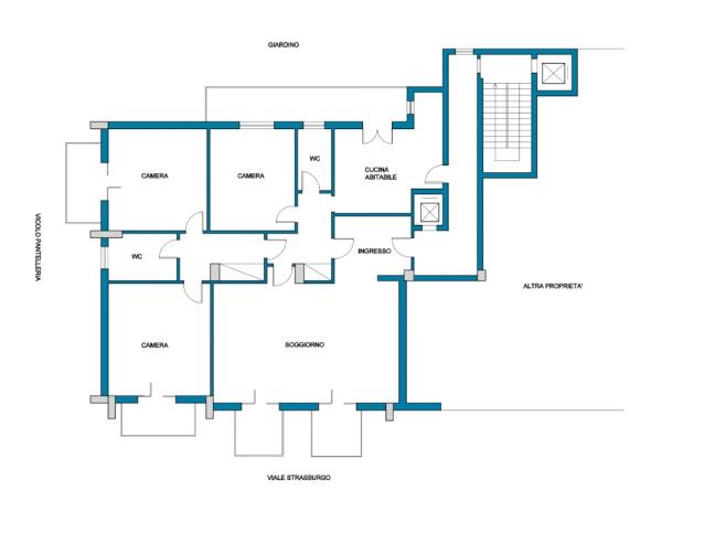
Vendita da privato. L’appartamento è situato al numero civico 253 di Viale Strasburgo; si trova al primo piano di un edificio condominiale e fa ad angolo, dunque gode di affaccio esterno su ben tre lati, questo fa sì che tutto l’ambiente interno sia pervaso dalla luce naturale a tutte le ore del giorno.
L’ingresso condominiale è provvisto di portineria custodita e di due ascensori.
L’accesso all’appartamento avviene mediante due ingressi, uno sul soggiorno e uno sulla cucina.
La superficie interna è di 162 mq, più 28 mq balconati; e si sviluppa in 7,5 vani con un’altezza utile di 2,90 metri.
Esso comprende:
- uno spazioso ingresso che si apre sul luminosissimo open-space del soggiorno-pranzo illuminato da due porte finestre con i rispettivi balconi prospicienti su viale Strasburgo;
- sul lato opposto si sviluppa la cucina abitabile, che si affaccia sulla corte interna del condominio ed ha accesso ad un grande balcone;
- la zona giorno è separata dalla zona notte da un disimpegno comprensivo di armadi a muro a tutta altezza, su cui si affacciano tre grandi camere da letto e due bagni, entrambi finestrati.
L’intero appartamento è stato recentemente ristrutturato e si trova nelle condizioni di poter essere immediatamente abitato. Si precisa inoltre che la pavimentazione è in un meraviglioso marmo locale che è il fiore all’occhiello di questa casa.
Se si volesse effettuare qualche modifica, si allega alle foto dell’appartamento, un’idea progettuale di un’ipotetica riprogettazione degli interni per mostrare che basta semplicemente sistemare gli arredi e ripensare a qualche finitura muraria alternativa per rendere unico e lussuoso questo gioiello.
Il prezzo è comprensivo di una consulenza di Interior Design con un architetto competente.

Contatti

Inserzionista Priscilla La Franca
Aggiornato il 25 maggio 2025

No contatti pubblicitari, grazie.

Invia un messaggio all'inserzionista

Casa Da Privato
La tua pubblicità qui, contattaci subito!

© 2005-2025 LaboWeb S.n.c. - P. Iva 10185480968
L'utilizzo del sito è subordinato all'accettazione delle Condizioni Generali, Informativa Privacy e Cookie Privacy - Impostazioni Privacy