ClickCase.it

Elegante attico con vista

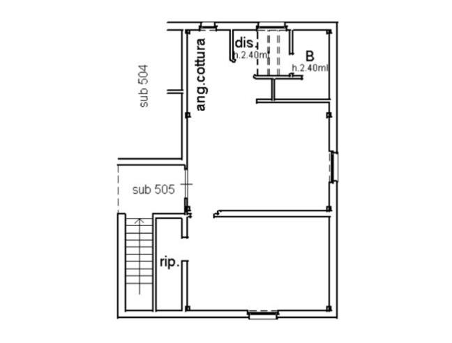
Attico in Vendita da Privato - Via di Ciceri 77, Roma

50 m² | 2 locali | 1 bagno | € 245.000 | Segnala abuso

Descrizione

Vendita da privato. Attico finemente ristrutturato di 50mq, situato in un quartiere silenzioso famoso per i ciliegi in fiore. Al terzo piano di un edificio anni ’30 (senza ascensore), offre una splendida vista sui tetti di Roma. Composto da camera matrimoniale, soggiorno con divano letto, cucina attrezzata e bagno moderno. A soli 10 minuti a piedi dalla metro Porta Furba (Linea A) e vicino a negozi, ristoranti e bar. Perfetto per chi cerca comfort e comodità in un’oasi di pace. Ottimo per investimento. Contattaci per visitarlo!
NO AGENZIE - C'è già un accordo in semi-esclusiva con una agenzia immobiliare fino a Marzo 2026.
Classe energetica A1 205,00 kWh/m²a

Caratteristiche

Stato: Ristrutturato
Anno costruzione: 1930
Piano: 3
Totale piani: 3
Cucina: Angolo cottura
Bagni: 1
Giardino: Nessuno
Camere da letto: 1
Riscaldamento: Autonomo
Climatizzazione: Si
Arredamento: Arredato
Ascensore: No
Balcone/Terrazzo: No
Box/Posto Auto: No
Cantina: No
Classe energetica: Classe Energetica A1
IPE: 205,00 kWh/m²a

Contatti

Inserzionista Pietro De Nicola
Aggiornato il 23 dicembre 2025

No contatti pubblicitari, grazie.

Invia un messaggio all'inserzionista

Casa Da Privato
La tua pubblicità qui, contattaci subito!

© 2005-2026 LaboWeb S.n.c. - P. Iva 10185480968
L'utilizzo del sito è subordinato all'accettazione delle Condizioni Generali, Informativa Privacy e Cookie Privacy - Impostazioni Privacy