Edificio residenziale in vendita a Calitri

Calitri - Vendita da Privato

  • Casa indipendente in Vendita da Privato - Via Nicolò Copernico 28, Calitri

    464 m² | più di 5 locali | 4 bagni | € 170.000

    No provvigioni. PREZZO TRATTABILE
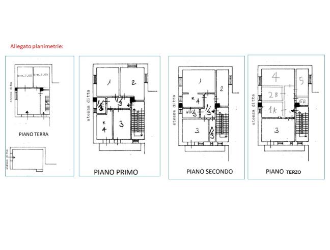
    In vendita edificio formato da 4 unità abitative indipendenti fra di loro, con scala in comune.
    Al piano terra l
    ocale open space, con firnacelle, bagno, cantina e soppalco utilizzabile come taverna, garage,...
    Al primo piano troviamo il primo appartamento formato da 3 locali, cucina abitabile e bagno, termoautonomo.
    Al secondo piano appartamento formato da 3 locali, cucina a vista, 2 camere, ripostoglio e bagno, termoautonomo.
    Al terzo piano mansarda da completare composta da 3 locali cucina abitabile, bagno e ripostiglio.
    In posizione centrale, ben servita...
    Da visitare!!!


Caratteristiche
Stato: Abitabile
Anno costruzione: 1974
Piano: Su più livelli
Totale piani: 3
Cucina: Abitabile
Bagni: 4
Giardino: Nessuno
Camere da letto: più di 5
Riscaldamento: Autonomo
Climatizzazione: No
Arredamento: Semi-arredato
Ascensore: No
Balcone/Terrazzo: Balcone
Box/Posto Auto: Doppio
Cantina: Si

Contatti

No contatti pubblicitari, grazie.

Invia un messaggio all'inserzionista

Inserzionista Antonio Strollo
Aggiornato il 02 settembre 2025

Segnala abuso