ClickCase.it

Da privato ufficio autonomo a Catania zona leopardi

Ufficio in Vendita da Privato - Via Giacomo Leopardi 1, Catania

300 m² | più di 5 locali | 3 bagni | € 460.000 | Segnala abuso

Descrizione

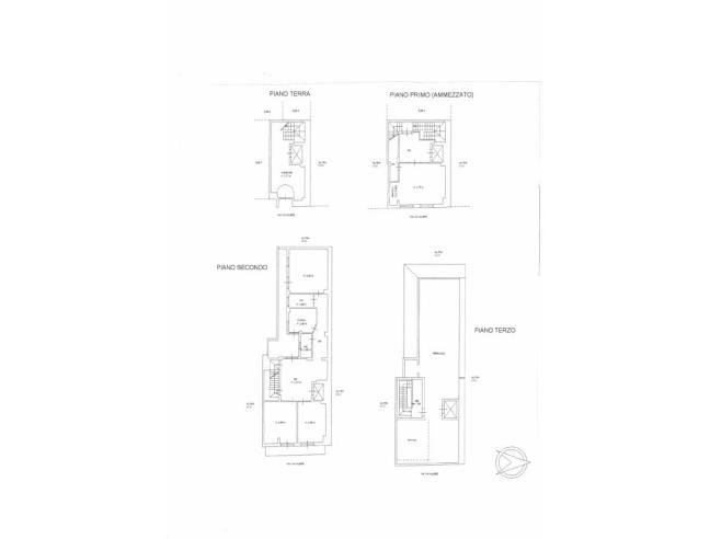
No provvigioni. Da privato a privato vendesi a Catania, nelle vicinanze di via Giacomo Leopardi , grande ufficio su più livelli autonomo di mq.294,00 commerciali, costruzione antisismica anno 2014. L’edificio si sviluppa su 4 livelli con ascensore e scala. Al piano terra vi è un androne con ascensore e scala; al piano primo vi è un ampio vano open space di mq.50 finestrato, al piano secondo vi sono n.5 camere e due wc, e due ampi balconi. Al piano terzo vi è un’ampia terrazza solarium di circa mq.100. Al piano interrato, con ingresso carrabile servito da cancello automatico, vi è un garage doppio di mq.26,00 servito da ascensore privato. Ottime rifiniture e locali climatizzati. Idoneo per abitazione e studio, uffici, studi professionali, ecc. Per informazioni tel.377/0935933
Classe energetica D 56,71 kWh/m³a

Caratteristiche

Stato: Abitabile
Anno costruzione: 2014
Piano: Su più livelli
Totale piani: 5
Superficie uffici: 300 m²
Cucina: Cucinotto
Bagni: 3
Giardino: Nessuno
Allarme: Predisposizione
Riscaldamento: Autonomo
Climatizzazione: Si
Arredamento: Vuoto
Ascensore: Si
Balcone/Terrazzo: Terrazzo
Box/Posto Auto: Doppio
Cantina: Si
Cablato: Si
Classe energetica: Classe Energetica D
IPE: 56,71 kWh/m³a

Contatti

Inserzionista Luca
Aggiornato il 24 settembre 2025

Invia un messaggio all'inserzionista

La tua pubblicità qui, contattaci subito!

© 2005-2026 LaboWeb S.n.c. - P. Iva 10185480968
L'utilizzo del sito è subordinato all'accettazione delle Condizioni Generali, Informativa Privacy e Cookie Privacy - Impostazioni Privacy