ClickCase.it

Colli aniene 85 mq da privato

Appartamento in Vendita da Privato - Zona Colli dell'Aniene, Roma

85 m² | 3 locali | € 339.000 | Segnala abuso

Descrizione

Vendita da privato. Privato vende appartamento di 85 mq, posto al piano 5° con ascensore, vicino a 2 stazioni Metro B - Stazione Santa Maria del Soccorso e Ponte Mammolo e a mezzi di trasporto pubblico di bus.
Ben servito da scuole di diverso grado, gode della vista di un parco giochi e della vicinanza di un Ufficio Postale, di due Farmacie, diversi supermercati, ristoranti e bar. La posizione d’angolo dell’appartamento consente una ottimale esposizione con una soleggiatura diretta durante l’intero arco della giornata.
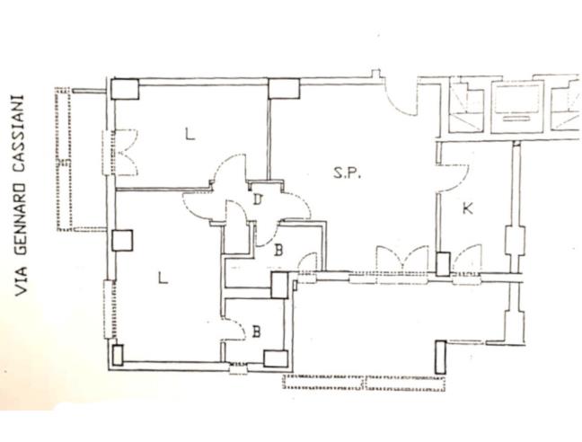
L'appartamento si presenta in buono stato ed è composto da soggiorno, con ampia portafinestra di accesso al terrazzo; cucina abitabile, anch’essa con porta finestra sul terrazzo ove è collocata la zona lavanderia e caldaia; disimpegno per zona la notte con accesso ad un bagno con adiacente ripostiglio; ampia camera matrimoniale con all’interno il secondo bagno; una seconda camera da letto con porta finestra che si apre sul balcone.
L’appartamento sarà visitabile previo appuntamento da fissare il sabato dalle ore 11:00 alle ore 13:00. Astenersi agenzie immobiliari e perditempo.
Si accetteranno proposte che saranno valutate al miglior offerente; non essendoci l’intermediazione di una agenzia si sottolinea l’importanza del risparmio per l’assenza della provvigione. Il prezzo è trattabile.
Caratteristiche:
contratto: Vendita
tipologia: appartamento | intera proprietà
piano: 5° con ascensore
locali: soggiorno, 2 camere da letto, disimpegno, 2 bagni, cucina abitabile, ripostiglio
in particolare le aree esterne misurano:
terrazzo: 16,50 mq (con ripostiglio esterno per lavatrice, caldaia, scope ecc.)
balcone: 5,60 mq
altre caratteristiche: porta blindata, climatizzatore freddo/caldo, caldaia autonoma per radiatori ed acqua calda sanitaria, parquet, Altre caratteristiche: porta blindata, climatizzatore freddo/caldo, caldaia autonoma per radiatori ed acqua calda sanitaria, parquet, pareti esterne coibentate all'interno della muratura.
Possibilità di acquistare, con diritto di prelazione, in un secondo tempo, un garage ed una cantina posta al piano terreno.

stato dell’appartamento: buono, abitabile, libero subito
Classe energetica E

Caratteristiche

Classe energetica: Classe Energetica E

Contatti

Inserzionista Elio
Aggiornato il 30 dicembre 2025

No contatti pubblicitari, grazie.

Invia un messaggio all'inserzionista

La tua pubblicità qui, contattaci subito!

© 2005-2026 LaboWeb S.n.c. - P. Iva 10185480968
L'utilizzo del sito è subordinato all'accettazione delle Condizioni Generali, Informativa Privacy e Cookie Privacy - Impostazioni Privacy