ClickCase.it

Centralissimo Locale commerciale 397mq C.so Umberto I,51/55

Negozio in Vendita da Privato - Termoli

397 m² | 2 locali | € 1.200.000 | Segnala abuso

Descrizione

Vendita da privato. La posizione è ottimale perchè centralissima.
A circa 100 metri dalla stazione si affaccia con 2 porte e 5 ampie vetrine sulla antistante la piazza centrale in corso Umberto I all’incrocio con corso Nazionale.
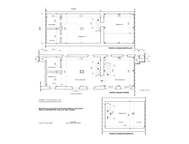
Locale commerciale multilivello per complessivi 397 mq cosi suddivisi:
piano interrato mq. 73,15 - piano terra (A) mq. 111,63 piano terra (B) mq. 60,89 - piano soppalco (A) di mq. 109,63 - piano soppalco (B) di mq. 42,50.
Classe energetica G

Video

Caratteristiche

Stato: Da ristrutturare
Piano: Su più livelli
Classe energetica: Classe Energetica G

Contatti

Inserzionista Francesco
Aggiornato il 06 novembre 2025

Invia un messaggio all'inserzionista

Casa Da Privato
La tua pubblicità qui, contattaci subito!

© 2005-2026 LaboWeb S.n.c. - P. Iva 10185480968
L'utilizzo del sito è subordinato all'accettazione delle Condizioni Generali, Informativa Privacy e Cookie Privacy - Impostazioni Privacy