ClickCase.it

Casetta delle stelle per operai e trasfertisti

Casetta delle stelle per operai e trasfertisti - Via Alessandro Volta 5 b, Porto Torres

5 posti letto | 3 camere | 100 m² | Offerta da € 99 a Notte | Segnala abuso

Descrizione

No intermediari. Solo affitti temporanei, NO FAMIGLIE residenti. Da ottobre a Marzo. Per operai, trasferisti.
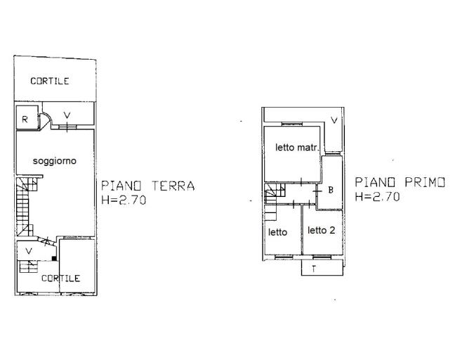
Casa singola indipendente su due livelli. Zona giorno al piano terra, zona notte con 3 camere da letto al primo piano. Due bagni. Veranda per pranzi o cene al fresco. Cucina completa, micro onde, macchina caffe. Essenziali da cucina tipo zucchero sale spezie olio ecc. No animali.
Registrazione contratto.

Caratteristiche

Tipo vacanza: Mare
Tema vacanza: Non definito
Piano: Su più livelli
Ascensore: No
Cucina: Abitabile
Bagni: 2
Giardino: Privato
Camere da letto: 3
Climatizzazione: Si
Piscina: No
Tennis: No
Golf: No

Accessori

Lenzuola: Si
Asciugamani: Si
Stoviglie: Si
Accesso internet: Si
Parcheggio comune: Si
Ombrelloni/Sdraio: Si
Biciclette: No
Forno: Si
Microonde: Si
Camino: Si
Barbecue: No
Lavastoviglie: Si
Lavatrice: Si
Televisione: Si
Satellite: Si
Frigorifero: Si
Congelatore: Si
Culla per bambini: No
Seggiolone per bambini: No
Sauna: No
Idromassaggio: No
Cassetta sicurezza: Si
Palestra: No
Accessibile ai disabili: No
Si accettano animali: No

Prezzi e disponibilità


InizioFinea Nottea Weekenda Settimanaal MeseOfferta / Last Minute
13.10.202529.03.202699 €--1.500 € 

Annotazioni del proprietario

No agenzie o intermediari

Contatti

Inserzionista Vincenzo
Aggiornato il 30 settembre 2025

No contatti pubblicitari, grazie.

Invia un messaggio all'inserzionista

Casa Da Privato
La tua pubblicità qui, contattaci subito!

© 2005-2025 LaboWeb S.n.c. - P. Iva 10185480968
L'utilizzo del sito è subordinato all'accettazione delle Condizioni Generali, Informativa Privacy e Cookie Privacy - Impostazioni Privacy