ClickCase.it

casa indipendente stile liberty

Casa indipendente in Vendita da Privato - Castellana Sicula

155 m² | più di 5 locali | 1 bagno | € 180.000 | Segnala abuso

Descrizione

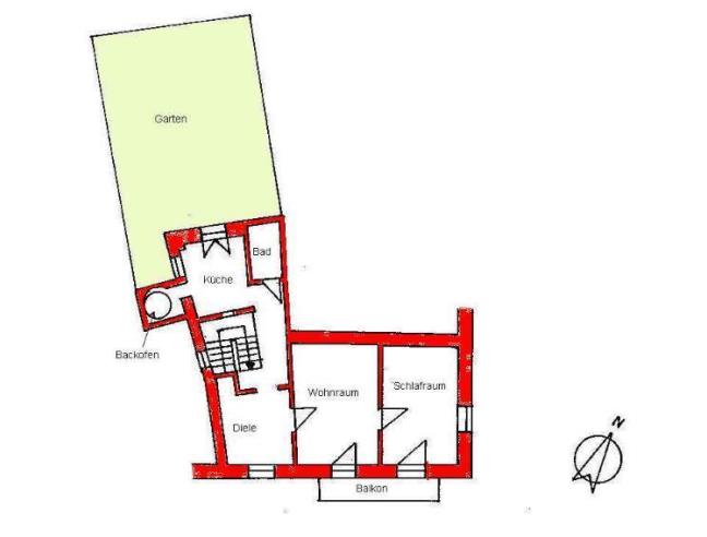
Vendita da privato. Offro Casa indipendente stile Liberty anni 30 di mq 155 in parte a ristrutturare, sita nel parco delle Madonnie a 20 km da zona sciistica Piano Battaglia. Ottima zona anche per chi cerca funghi, per chi ama caminare in montagna, sentiero che porta a Monte Alto a 1500m di altitudine dove sorge un bellissimo santuario Mariano, meta di tanti pellegrini. La casa offre un giardino interno dim q 60 con noce secolare e un fico d´India frutto tipico siciliano. I pavimenti sono in ceramica antica con decori floreali. Porte in legno, scala interna con marmo bianco e ringhiera in ferro battuto cosí come la terrazza. Piccola cucina in muratura e forno a legna, 3 camere e bagno al piano superiore. Ingresso al piano terra con 3 vani da ristrutturare. Permessi comunali e delle belle arti del genio civile accordati. Eventuali preventivi per ristrutturazione pronti. Ape g richiesta 180.000 €
Classe energetica G

Video

Caratteristiche

Stato: Da ristrutturare
Piano: Su più livelli
Totale piani: 2
Cucina: Cucinotto
Bagni: 1
Giardino: Privato
Camere da letto: 3
Riscaldamento: Assente
Arredamento: Vuoto
Balcone/Terrazzo: Terrazzo
Cantina: Si
Classe energetica: Classe Energetica G

Contatti

Inserzionista Giuseppina
Aggiornato il 27 novembre 2025

Invia un messaggio all'inserzionista

Casa Da Privato
La tua pubblicità qui, contattaci subito!

© 2005-2025 LaboWeb S.n.c. - P. Iva 10185480968
L'utilizzo del sito è subordinato all'accettazione delle Condizioni Generali, Informativa Privacy e Cookie Privacy - Impostazioni Privacy