ClickCase.it

Casa indipendente

Casa indipendente in Vendita da Privato - San Stino di Livenza

70 m² | 2 locali | 1 bagno | € 90.000 | Segnala abuso

Descrizione

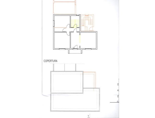
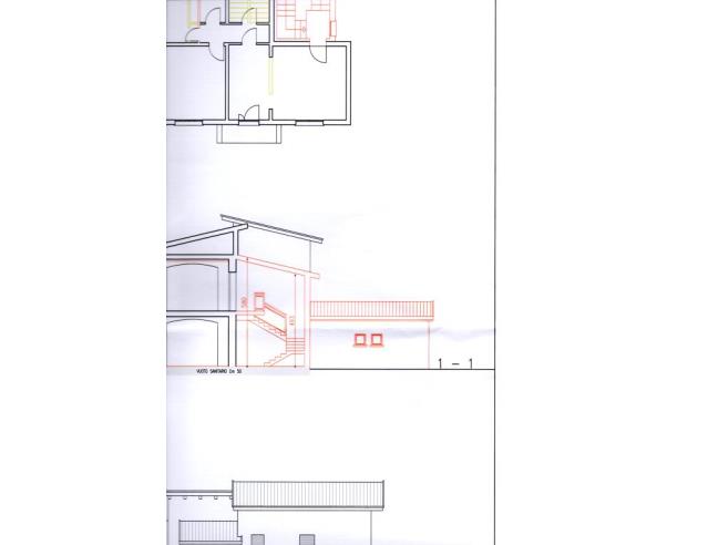
No provvigioni. Casa di circa 130 mq con terreno di circa 1300 mq, sita in via Triestina N 47, a San Stino di Livenza, con concessione per ampliamento e restauro, per realizzazione 2 unità abitative di circa 70 mq calpestabili + 2 garage. Oneri e progetti pagati e compresi nel prezzo di vendita!

Video

Caratteristiche

Stato: Da ristrutturare
Piano: 2
Bagni: 1
Giardino: Privato
Camere da letto: 2
Arredamento: Vuoto
Ascensore: No
Balcone/Terrazzo: Balcone
Box/Posto Auto: Singolo
Cantina: No

Contatti

Inserzionista Ennio Agnolin
Aggiornato il 07 febbraio 2026

Invia un messaggio all'inserzionista

Casa Da Privato
La tua pubblicitĂ  qui, contattaci subito!

© 2005-2026 LaboWeb S.n.c. - P. Iva 10185480968
L'utilizzo del sito è subordinato all'accettazione delle Condizioni Generali, Informativa Privacy e Cookie Privacy - Impostazioni Privacy