ClickCase.it

Casa indipendente Bifamiliare

Casa indipendente in Vendita da Privato - Zona Cattabrighe, Pesaro

181 m² | più di 5 locali | € 390.000 | Segnala abuso

Descrizione

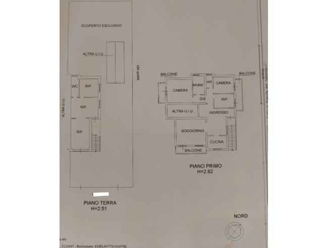
No provvigioni. VENDESI APPARTAMENTO al primo piano in Villa Bifamiliare di 118 mq con annesso cantina di 57 mq, ampi terrazzi, garage di 32,5 mq al primo piano sottostrada e scoperto con piccolo orto per un totale di 284 mq.
Zona VISMARA-CATTABRIGHE in contesto silenzioso essendo al termine di una via chiusa.
Prezzo 390 mila€ trattabili.
Classe energetica F

Caratteristiche

Classe energetica: Classe Energetica F

Contatti

Inserzionista ROSANNA
Annuncio del 12 novembre 2025

No contatti pubblicitari, grazie.

Invia un messaggio all'inserzionista

La tua pubblicità qui, contattaci subito!

© 2005-2026 LaboWeb S.n.c. - P. Iva 10185480968
L'utilizzo del sito è subordinato all'accettazione delle Condizioni Generali, Informativa Privacy e Cookie Privacy - Impostazioni Privacy