ClickCase.it

Casa in collina

Casa indipendente in Vendita da Privato - Via Costa Pavesi 8, Noceto

140 m² | 4 locali | 2 bagni | Trattativa Riservata | Segnala abuso

Descrizione

Vendita da privato. Vendesi ultima unità di una Bifamiliare,situata nelle prime colline tra Noceto e Fidenza.
La casa al piano terra è costituita da un ampio open space soggiorno e cucina,un bagno e garage.
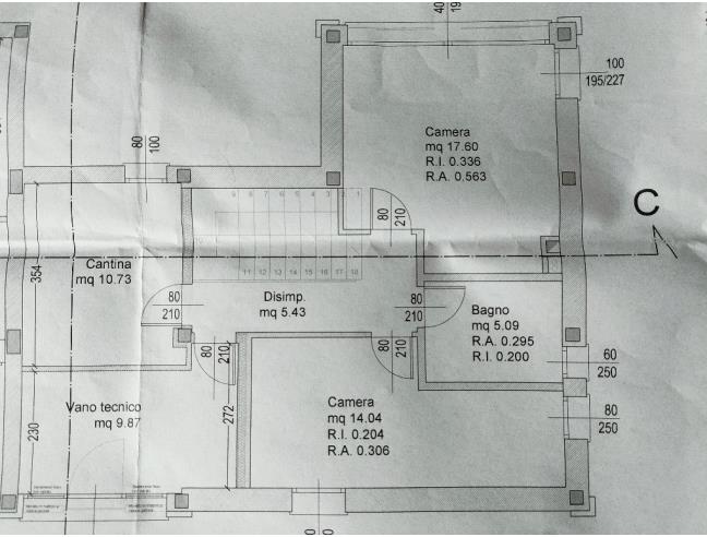
Al primo piano la zona notte con 2 camere matrimoniali, una camera singola, un bagno e un vano tecnico/lavanderia.
Giardino di circa 2000mq

Possibilità bonus fiscali: sisma bonus acquisti.

Nuova direttiva europea case green:
Riduce i consumi energetici e alleggerisce le bollette di luce e gas.
Migliora il comfort abitativo, la qualità di vita e il benessere di tutti.
Impatta sempre di meno sull’ambiente, e di conseguenza sui cicli economici (dall’alimentazione, all’aria che respiriamo, fino alla qualità dei terreni e dei servizi pubblici.
Aumenta il valore dell’immobile (le case valgono di più e sono un investimento che prolunga ulteriormente il suo ciclo di durata
Classe energetica A4

Caratteristiche

Stato: Nuovo/In costruzione
Anno costruzione: 2025
Totale piani: 2
Cucina: Abitabile
Bagni: 2
Giardino: Privato
Camere da letto: 3
Riscaldamento: Autonomo
Climatizzazione: Si
Ascensore: No
Box/Posto Auto: Singolo
Cantina: Si
Classe energetica: Classe Energetica A4

Contatti

Inserzionista Marco
Aggiornato il 15 marzo 2026

No contatti pubblicitari, grazie.

Invia un messaggio all'inserzionista

Casa Da Privato
La tua pubblicità qui, contattaci subito!

© 2005-2026 LaboWeb S.n.c. - P. Iva 10185480968
L'utilizzo del sito è subordinato all'accettazione delle Condizioni Generali, Informativa Privacy e Cookie Privacy - Impostazioni Privacy