ClickCase.it

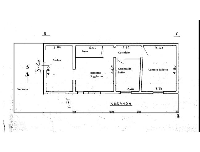
Casa con terreno di mq 4700

Casa indipendente in Vendita da Privato - Noto

4700 m² | 5 locali | € 280.000 | Segnala abuso

Descrizione

Vendita da privato. Falconara Noto a 5 minuti dal mare e dal centro storico di Noto.
Casa accatastata nel 1985 e ristrutturata nel 2015 con possibilita' di sopraelevazione.

Forno a legna, trivella per annaffiare terreno

Terreni con ulivi, limoni, aranci, mandorli.
Luogo ideale per piantare il pregiatissimo caviale di limone (circa 150 euro al KG).

Video

Contatti

Inserzionista Marilisa
Aggiornato il 11 febbraio 2026

Invia un messaggio all'inserzionista

Casa Da Privato
La tua pubblicitĂ  qui, contattaci subito!

© 2005-2026 LaboWeb S.n.c. - P. Iva 10185480968
L'utilizzo del sito è subordinato all'accettazione delle Condizioni Generali, Informativa Privacy e Cookie Privacy - Impostazioni Privacy