ClickCase.it

Capannone molto luminoso di ampia metratura

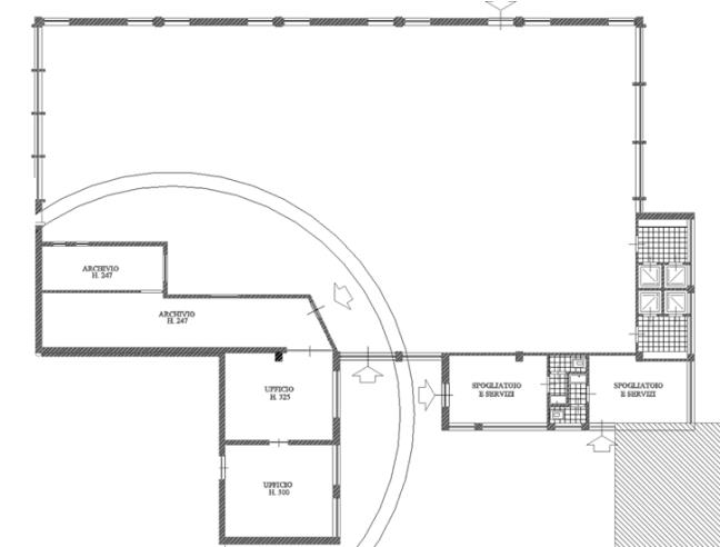
Capannone in Affitto da Privato - Via N. Bixio 19, Vigevano

470 m² | 5 locali | 3 bagni | € 1.900 mensili | Segnala abuso

Descrizione

No provvigioni. Capannone situato in via Bixio 19, Vigevano (PV)
Superfice: 450-470 m2
Categoria catastale: D1. Disponibilità a valutare cambio destinazione castale con oneri a carico di inquilino e rimodulazione dei primi canoni di affitto
Dati aggiuntivi:
-2 bagni con servizi sanitari (water), 1 bagno con turca.
-Sistema di riscaldamento a gas (con ventilazione forzata)
-Cortile di ingresso con diritto di passaggio

Caratteristiche

Tipo locazione: 3+2 concordato
Stato: Ristrutturato
Anno costruzione: 1970
Piano: Piano terra
Totale piani: 1
Bagni: 3
Riscaldamento: Autonomo
Climatizzazione: Predisposizione
Ascensore: No

Contatti

Inserzionista Paola
Aggiornato il 04 ottobre 2025

No contatti pubblicitari, grazie.

Invia un messaggio all'inserzionista

Casa Da Privato
La tua pubblicità qui, contattaci subito!

© 2005-2025 LaboWeb S.n.c. - P. Iva 10185480968
L'utilizzo del sito è subordinato all'accettazione delle Condizioni Generali, Informativa Privacy e Cookie Privacy - Impostazioni Privacy