ClickCase.it

BILOCALE VIA XX SETTEMBRE - LODI

Appartamento in Vendita da Privato - Lodi

80 m² | 3 locali | € 218.000 | Segnala abuso

Descrizione

No intermediari. PRIVATO vende STUPENDO E COMODO BILOCALE A DUE PASSI DA PIAZZA DELLA VITTORIA A LODI

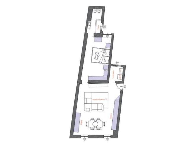
VIA XX SETTEMBRE in pieno centro storico, a due passi da piazza della Vittoria e da tutti i principali servizi, proponiamo in vendita in un tranquillissimo contesto condominiale, un bellissimo bilocale di 80 mq ristrutturato posto al piano terra di un condominio di 2 piani.

La soluzione si sviluppa con una doppia esposizione, una sulla pubblica via ed una sul cortile interno.
Internamente composta da: ampio soggiorno con cucina a vista, camera matrimoniale, bagno con vasca e rispostiglio/lavanderia di 4 mq.
L'immobile, essendo al piano terra, risulta essere di facile accesso e comodo per diversi tipi di utenza: persone anziane, giovani coppie, ecc.

Le spese condominiali sono minime ( circa 70 euro al mese)

Internamente l'immobile presenta una pavimentazione in parquet nei locali soggiorno/cucina e camera matrimoniale mentre in ceramica nel locale lavanderia e bagno. Il soffitto è in travi di legno tranne nel bagno dove è intonacato.
Gli infissi sono in legno - doppio vetro con zanzariere e inferriate
La porta d'ingresso è blindata con spioncino digitale, è presente un videocitofono e l'impianto di riscaldamento è autonomo.

Completano la proprietà: un ampio box di 18 mq con finestra e basculante elettrica posto a livello stradale + una cantina di circa 6 mq

L'immobile sarà venduto comprensivo di cucina con tutti gli elettrodomestici: forno, fornelli, frigorifero e lavastoviglie

NO AGENZIE
Contattare possibilmente dalle ore 15
Classe energetica F 258,00 kWh/m²a

Caratteristiche

Classe energetica: Classe Energetica F
IPE: 258,00 kWh/m²a

Contatti

Inserzionista Glo
Aggiornato il 02 novembre 2025

Invia un messaggio all'inserzionista

Casa Da Privato
La tua pubblicitĂ  qui, contattaci subito!

© 2005-2026 LaboWeb S.n.c. - P. Iva 10185480968
L'utilizzo del sito è subordinato all'accettazione delle Condizioni Generali, Informativa Privacy e Cookie Privacy - Impostazioni Privacy