ClickCase.it

Bilocale ristrutturato, ampio e luminoso a Lesmo

Appartamento in Vendita da Privato - Lesmo

60 m² | 2 locali | 1 bagno | € 110.000 | Segnala abuso

Descrizione

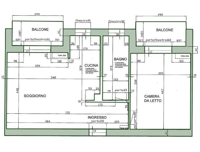
Vendita da privato. Bilocale di 60mq, ristrutturato, libero da mutui ed ipoteche, composto da sala, cucina a vista, ampio disimpegno, bagno, camera. la palazzina è la più interna e riparata delle due unità. Giardino condominiale. La casa è all'ultimo piano di una costruzione di n.3 piani, con un'ampia cantina (4mx3m) e due balconi, uno lato sala, uno lato camera. Il riscaldamento è centralizzato con contatori di flusso per ogni unità abitativa. La caldaia nuova, installata lo scorso anno, ha ridotto le spese condominiali già contenute. Condizionatore nuovo installato. La casa è ideale per coppie giovani. L'appartamento è situato a Gerno di Lesmo, a 8 minuti a piedi dalla stazione dei treni di Biassono-Parco. La zona è verde e tranquilla, con a disposizione una vasta area di parcheggi sotto casa. Gode di silenzio e tranquillità e nello stesso tempo offre la possibilità di un immediato accesso alle più importanti vie di comunicazione della zona. Classe G, IPE 305,39 Kwh/mq
Classe energetica G 305,39 kWh/m²a

Video

Caratteristiche

Stato: Ristrutturato
Piano: 3
Totale piani: 3
Cucina: Angolo cottura
Bagni: 1
Giardino: Comune
Camere da letto: 1
Riscaldamento: Centralizzato
Climatizzazione: Si
Balcone/Terrazzo: Balcone
Cantina: Si
Classe energetica: Classe Energetica G
IPE: 305,39 kWh/m²a

Contatti

Inserzionista Sara
Aggiornato il 31 maggio 2025

No contatti pubblicitari, grazie.

Invia un messaggio all'inserzionista

Casa Da Privato
La tua pubblicitĂ  qui, contattaci subito!

© 2005-2025 LaboWeb S.n.c. - P. Iva 10185480968
L'utilizzo del sito è subordinato all'accettazione delle Condizioni Generali, Informativa Privacy e Cookie Privacy - Impostazioni Privacy