ClickCase.it

BILOCALE MANSARDATO con BOX DOPPIO

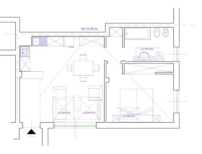
Appartamento in Vendita da Privato - Grezzago

60 m² | 2 locali | 1 bagno | € 55.000 | Segnala abuso

Descrizione

No intermediari. BILOCALE MANSARDATO con BOX DOPPIO , ULTIMO PIANO, condizionatore,
semi arredato con cucina in muratura, armadi su misura, riscaldamento autonomo, porta blindata
Classe energetica E 245,00 kWh/m²a

Caratteristiche

Stato: Abitabile
Anno costruzione: 2000
Piano: 3
Totale piani: 3
Cucina: Angolo cottura
Bagni: 1
Camere da letto: 1
Riscaldamento: Autonomo
Climatizzazione: Si
Arredamento: Semi-arredato
Ascensore: Si
Box/Posto Auto: Doppio
Classe energetica: Classe Energetica E
IPE: 245,00 kWh/m²a

Contatti

Inserzionista marco
Aggiornato il 15 settembre 2025

Invia un messaggio all'inserzionista

Casa Da Privato
La tua pubblicitĂ  qui, contattaci subito!

© 2005-2026 LaboWeb S.n.c. - P. Iva 10185480968
L'utilizzo del sito è subordinato all'accettazione delle Condizioni Generali, Informativa Privacy e Cookie Privacy - Impostazioni Privacy