ClickCase.it

bilocale in residence

Appartamento in Vendita da Privato - Zona Casilina, Roma

60 m² | 2 locali | 1 bagno | € 168.000 | Segnala abuso

Descrizione

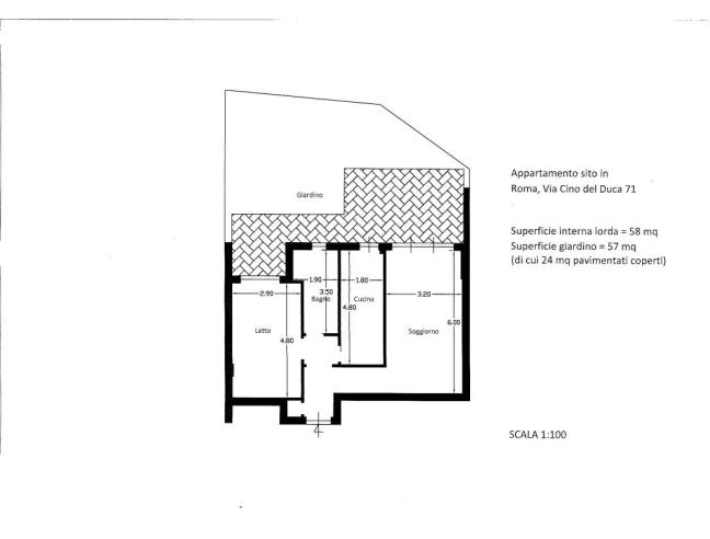
No provvigioni. Grazioso appartamento di 60 mq. in residence immerso nel verde, composto da 2 camere, servizi, giardino di 60mq. con patio, ingresso controsoffitatato con ampio soppalco/ripostigio, cantina, porta blindata, posti auto condominiali.
Nei pressi dell'Università e del Policlinico di Tor Vergata

Video

Caratteristiche

Stato: Abitabile
Piano: Piano terra
Cucina: Abitabile
Bagni: 1
Giardino: Privato
Camere da letto: 1
Riscaldamento: Centralizzato
Arredamento: Vuoto
Ascensore: Si
Box/Posto Auto: Posto auto scoperto
Cantina: Si

Contatti

Inserzionista Anna Rita
Aggiornato il 05 dicembre 2025

Invia un messaggio all'inserzionista

Casa Da Privato
La tua pubblicitĂ  qui, contattaci subito!

© 2005-2026 LaboWeb S.n.c. - P. Iva 10185480968
L'utilizzo del sito è subordinato all'accettazione delle Condizioni Generali, Informativa Privacy e Cookie Privacy - Impostazioni Privacy