ClickCase.it

BILOCALE con AMPIO GIARDINO e TERRAZZO a Bonassola centro

BILOCALE con AMPIO GIARDINO e TERRAZZO a Bonassola centro - Via Gino Daneri 79, Bonassola

5 posti letto | 1 camera | 50 m² | Offerta da € 600 a Settimana | Segnala abuso

Descrizione

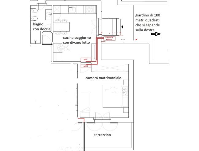
No intermediari. Appartamento NUOVO in pieno centro a Bonassola in zona tranquilla (dietro PENSIONE MODERNA). A soli 4 minuti a piedi dalla spiaggia principale e 3 minuti da stazione del treno. Dotato di piccolo terrazzo e ampio giardino al piano in diretta comunicazione con cucina dove potrai goderti pranzi e cene (presenza di ombrellone e tavolo da esterno). Un bagno. Una camere da letto indipendente (un letto matrimoniale e 1 singolo). Soggiorno con cucina e divano letto ad una piazza e mezza. Condizionatore caldo fretto in entrambe le stanze. TV. Per arrivare all'appartamento ci sono 58 gradini senza ascensore. NON Incluso permesso parcheggio NO posto auto

Numero di registrazione (CIR/CIN): IT011005C256XYNDTA

Caratteristiche

Tipo vacanza: Mare
Tema vacanza: Non definito
Piano: 2
Ascensore: No
Cucina: Abitabile
Bagni: 1
Giardino: Privato
Camere da letto: 1
Riscaldamento: Autonomo
Climatizzazione: Si

Accessori

Stoviglie: Si
Parcheggio privato: No
Parcheggio comune: No
Ombrelloni/Sdraio: Si
Microonde: Si
Barbecue: Si
Lavastoviglie: Si
Lavatrice: Si
Televisione: Si
Frigorifero: Si
Congelatore: Si
Accessibile ai disabili: No
Si accettano animali: Si

Prezzi e disponibilità

Consumi: 50 € esclusi

InizioFinea Nottea Weekenda Settimanaal MeseOfferta / Last Minute
01.03.202531.05.2025--600 €1.400 € 
01.06.202528.06.2025--800 €2.500 € 
29.06.202531.08.2025--1.200 €4.000 € 
01.09.202531.10.2025--800 €2.500 € 

Annotazioni del proprietario

AGGIORNATO ORA IL 1.2.25 scrivere per maggiori info o dettagli al 3471365438 su whatsup - SI ACCETTANO PRENOTAZIONI PER IL 2025 (per ora tutto libero 2025) - POSSIBILITA' DI AFFITTO ANNUALE (12000 EURO escluse spese energia elettrica) o STAGIONALE (prezzo da concordare in base a periodo)

SOGGIORNO CON CUCINA NUOVA + TAVOLO DA PRANZO + DIVANO LETTO + TV (frigo, freezer, forno, microonde, fornelli, lavatrice e lavostoviglie e caldaia NUOVI) - divano letto ad una piazza e mezzo

CAMERA: camera con letto matrimoniale indipendente con armadio e condizionatore + 1 LETTO SINGOLO - porta finestra su terrazzo

BAGNO: fenestrato con doccia e caldaia acqua calda nuova

Contatti

Inserzionista Matteo Coviello
Aggiornato il 26 gennaio 2026

No contatti pubblicitari, grazie.

Invia un messaggio all'inserzionista

Casa Da Privato
La tua pubblicitĂ  qui, contattaci subito!

© 2005-2026 LaboWeb S.n.c. - P. Iva 10185480968
L'utilizzo del sito è subordinato all'accettazione delle Condizioni Generali, Informativa Privacy e Cookie Privacy - Impostazioni Privacy