ClickCase.it

Bilocale classe A2

Appartamento in Vendita da Privato - Via Giovanni Pascoli 7, Paderno Dugnano

75 m² | 2 locali | 1 bagno | € 269.000 | Segnala abuso

Descrizione

No intermediari. Nel pieno centro di Palazzolo Milanese (Paderno Dugnano), a 100 metri dalla stazione ferroviaria, in vendita ampio e luminoso bilocale, al terzo e ultimo piano di un contesto del 2005 recentemente oggetto di intervento di efficientamento energetico tramite superbonus 110. L’appartamento è situato in una zona di assoluta riservatezza e silenziosità. La zona circostante vanta diversi parchi (Parco del Grugnotorto, Parco Lago Nord, Parco degli Alpini, Parco Toti) e percorsi ciclo/pedonali (canale villoresi, pista ciclabile del parco delle groane).

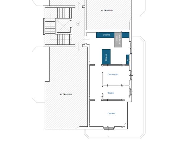
Composto da zona living con cucina a isola (da cui si potrebbe eventualmente ricavare una cameretta aggiuntiva e per il cui possibile render si rimanda alla planimetria allegata), camera matrimoniale, bagno con box doccia e ripostiglio dove è presente la lavatrice. Tutte le zone dell’appartamento accedono ad un unico terrazzo con un’ampia zona pranzo con tende, luci e prese elettriche, attacco acqua.

L’appartamento, di classe energetica A2, è dotato di infissi nuovi ad alta efficienza, un sistema di riscaldamento autonomo con caldaia a condensazione di ultima generazione e cappotto che garantiscono un elevato confort abitativo e risparmio economico. Sono inoltre presenti la predisposizione per l’aria condizionata canalizzata, finiture bticino e tende automatizzate.

L’immobile è dotato di cantina e di ampio box (30 mq.) e viene venduto completo di tutti gli arredi.

Per ricevere maggiori informazioni e/o per fissare un appuntamento contattare al Cell/WhatsApp (per chiamate preferibilmente dopo le 18)

Libero subito
Classe energetica A2

Caratteristiche

Stato: Ristrutturato
Anno costruzione: 2005
Piano: 3
Totale piani: 3
Cucina: Abitabile
Bagni: 1
Camere da letto: 1
Riscaldamento: Autonomo
Climatizzazione: Predisposizione
Arredamento: Arredato
Ascensore: Si
Balcone/Terrazzo: Terrazzo
Box/Posto Auto: Doppio
Cantina: Si
Classe energetica: Classe Energetica A2

Contatti

Inserzionista fabio
Annuncio del 26 febbraio 2026

No contatti pubblicitari, grazie.

Invia un messaggio all'inserzionista

Casa Da Privato
La tua pubblicità qui, contattaci subito!

© 2005-2026 LaboWeb S.n.c. - P. Iva 10185480968
L'utilizzo del sito è subordinato all'accettazione delle Condizioni Generali, Informativa Privacy e Cookie Privacy - Impostazioni Privacy