ClickCase.it

BILOCALE CASCINA ALPIS DA PRIVATO

Appartamento in Vendita da Privato - Via Giuseppe Verdi 71, Volpiano

55 m² | 2 locali | 1 bagno | € 109.000 | Segnala abuso

Descrizione

No provvigioni. VENDITA BILOCALE DA PRIVATO
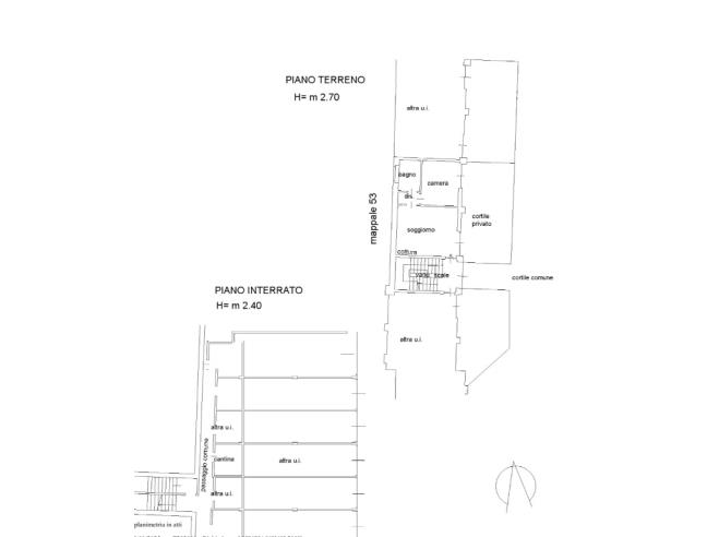
In zona residenziale propongo in vendita bilocale di 55 metri quadrati circa con terrazzo privato. La casa sita al piano terra, è composta da ingresso su soggiorno con cucina a vista, disimpegno con armadio a muro su misura, bagno con walk-in e camera da letto. Completano la soluzione un terrazzo di circa 40 metri quadrati, gli infissi in pvc con doppio vetro, zanzariere, presenza di porta blindata, videocitofono, condizionatore e predisposizione per antifurto.
Il pavimento è parquet con riscaldamento a pavimento e sono presenti i pannelli fotovoltaici condominiali installati nell’estate 2025.
La casa non presenta barriere architettoniche.
L'appartamento è sorge in un contesto circondato da giardino condominiale e, il complesso stesso, è posto sotto osservazione dell'Istituto Delle Belle Arti, tipico dell'epoca settecentesca. Completa la soluzione al piano interrato un’ampia cantina.
L’appartamento viene venduto non arredato, libero da gennaio 2026
Asja
Classe energetica C 49,11 kWh/m²a

Caratteristiche

Stato: Nuovo/In costruzione
Anno costruzione: 2011
Piano: Piano terra
Totale piani: 1
Cucina: Abitabile
Bagni: 1
Giardino: Comune
Camere da letto: 1
Riscaldamento: Centralizzato
Climatizzazione: Si
Arredamento: Vuoto
Ascensore: No
Balcone/Terrazzo: Terrazzo
Cantina: Si
Classe energetica: Classe Energetica C
IPE: 49,11 kWh/m²a

Contatti

Inserzionista Asja
Annuncio del 20 novembre 2025

Invia un messaggio all'inserzionista

Casa Da Privato
La tua pubblicità qui, contattaci subito!

© 2005-2026 LaboWeb S.n.c. - P. Iva 10185480968
L'utilizzo del sito è subordinato all'accettazione delle Condizioni Generali, Informativa Privacy e Cookie Privacy - Impostazioni Privacy