ClickCase.it

BILOCALE ARREDATO LIBERO DA META' NOVEMBRE 2025

Appartamento in Affitto da Privato - VIA SOLFERINO 17, Cologno al Serio

51 m² | 2 locali | 1 bagno | € 600 mensili | Segnala abuso

Descrizione

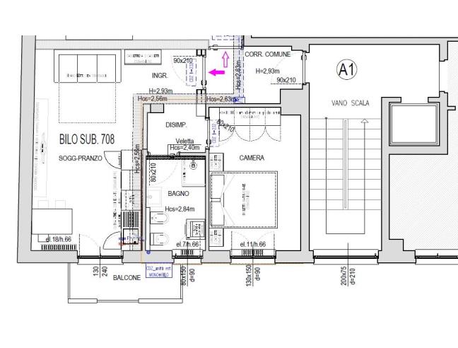
Affitto da privato. In condomino di 5 piani, nel centro storico del bel Comune di COLOGNO AL SERIO, affitto con contratto classico 4+4 o transitorio (minimo 12 mesi massimo 18), bilocale al piano primo, recentemente ristrutturato e completamente arredato a nuovo e composto come segue: ingresso con presenza di condizionatore, soggiorno-pranzo con zona cucina, con presenza di lavastoviglie, con tavolo da pranzo ed accesso al balcone, sul cortile interno, di circa 4 mq e zona tv con presenza di divano letto, alla francese (140x190)cm, disimpegno, bagno completo di sanitari, lavabo, doccia (accessibile ai disabili) e lavatrice e camera completa con presenza di condizionatore.

Possibilità di avere posto auto scoperto, in cortile interno,
pari ad €. 50 / mese.

Utenze (luce e gas) autonome attive da volturare.

Spese ed oneri condominiali 75 euro al mese.

Richiesta cauzione euro 1.800 (pari a 3 mensilità euro 600 x 3) + un mese affitto anticipato euro 675

LIBERO DA META’ NOVEMBRE 2025

ASTENERSI AGENZIE.

SOLO PERSONE REFERENZIATE E SERIE.
Classe energetica F 221,00 kWh/m²a

Caratteristiche

Tipo locazione: 4+4
Spese: € 75 mensili incluse
Stato: Abitabile
Anno costruzione: 1976
Piano: 1
Totale piani: 5
Cucina: Abitabile
Bagni: 1
Giardino: Nessuno
Camere da letto: 1
Riscaldamento: Autonomo
Climatizzazione: Si
Arredamento: Arredato
Ascensore: Si
Balcone/Terrazzo: Balcone
Box/Posto Auto: Posto auto scoperto
Cantina: No
Classe energetica: Classe Energetica F
IPE: 221,00 kWh/m²a

Contatti

Inserzionista Alberto
Aggiornato il 09 ottobre 2025

No contatti pubblicitari, grazie.

Invia un messaggio all'inserzionista

Casa Da Privato
La tua pubblicità qui, contattaci subito!

© 2005-2025 LaboWeb S.n.c. - P. Iva 10185480968
L'utilizzo del sito è subordinato all'accettazione delle Condizioni Generali, Informativa Privacy e Cookie Privacy - Impostazioni Privacy