ClickCase.it

Bilocale 60 mq, 1° piano, in zona centralissima

Appartamento in Vendita da Privato - Via Cormons 12, Laterza

60 m² | 2 locali | 1 bagno | € 60.000 | Segnala abuso

Descrizione

Privato vende. In vendita un appartamento bilocale di circa 60 mq, situato al primo piano di una palazzina in zona centrale, a pochi metri dalla via dello shopping e da numerosi esercizi commerciali (polleria, macelleria, gastronomia gourmet, bar, pizzerie, tabaccheria, rosticceria, cartolerie, panificio, supermercato e molto altro).

Proponiamo (con cambio di destinazione d'uso) la possibilità di utilizzarlo come raffinato laboratorio/studio tecnico, perfetto per chi desidera uno spazio di lavoro dal carattere distintivo e contemporaneo.
L'appartamento si distingue per la sua architettura ariosa: ampie altezze che donano luce naturale e una struttura open space che valorizza la sensazione di libertà e fluidità degli ambienti che si adatta con naturalezza a diverse esigenze professionali.
Rappresenta la soluzione ideale per studi creativi, atelier di moda o design, architetti, avvocati, medici, notai o professionisti che desiderano lavorare in un contesto dal forte impatto estetico, capace di ispirare e rappresentare al meglio la propria identità.

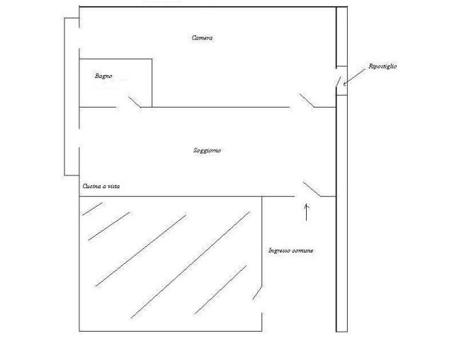
L’immobile è composto da:
-Soggiorno luminoso con cucina a vista
-Camera da letto matrimoniale
-Bagno finestrato
-Balcone lungo e vivibile, ideale per momenti di relax, con esposizione su vicolo privato, soleggiato
-Ingresso “al piano” tramite corridoio con uso area reception
-Sgabuzzino di 2,5 metri cubi di volume con scaffali in legno

Caratteristiche e dotazioni:
-Riscaldamento autonomo con caldaia Gas e termosifoni moderni
-Aria condizionata
-Zanzariere su tutte le finestre e portelli
-Impianto elettrico rifatto di recente con prese moderne
-Impianto antenna TV
-Porta blindata
-Cucina componibile (fornelli+cappa+forno) e (frigo+frizer)
-Armadio ampio con ante e scaffalatura stile moderno con possibile uso archivio documenti/libri

Appartamento in buono stato, semiarredato, pronto per essere abitato.
Nonostante la posizione centrale, l’area è caratterizzata da un traffico silenzioso e tranquillo.
A soli 50 metri si trova la scuola elementare, mentre nelle immediate vicinanze sono presenti scuole medie inferiori e primarie.
Soluzione ideale per coppie con bimbo, single o come studio/laboratorio data la comodità dei servizi e la posizione strategica.
Per maggiori informazioni o per fissare una visita, contattaci!
Prezzo trattabile!
Classe energetica A4 150,00 kWh/m²a

Caratteristiche

Stato: Abitabile
Piano: 1
Totale piani: 1
Cucina: Angolo cottura
Bagni: 1
Giardino: Nessuno
Camere da letto: 1
Riscaldamento: Autonomo
Climatizzazione: Si
Arredamento: Semi-arredato
Ascensore: No
Balcone/Terrazzo: Balcone
Box/Posto Auto: No
Cantina: No
Classe energetica: Classe Energetica A4
IPE: 150,00 kWh/m²a

Contatti

Inserzionista Angelo
Aggiornato il 09 aprile 2026

No contatti pubblicitari, grazie.

Invia un messaggio all'inserzionista

La tua pubblicità qui, contattaci subito!

© 2005-2026 LaboWeb S.n.c. - P. Iva 10185480968
L'utilizzo del sito è subordinato all'accettazione delle Condizioni Generali, Informativa Privacy e Cookie Privacy - Impostazioni Privacy