ClickCase.it

Bellinzago Lombardo adiacente GessateMM LineOfroAppartamento

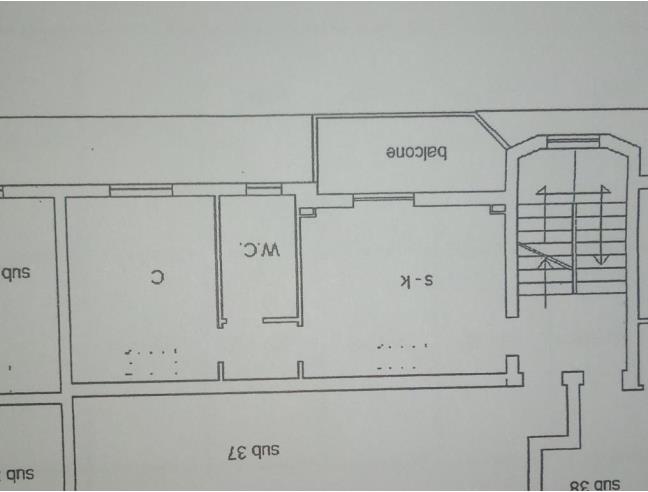
Appartamento in Vendita da Privato - Vicolo Broletto 8, Bellinzago Lombardo

60 m² | 2 locali | 1 bagno | € 110.000 | Segnala abuso

Descrizione

Privato vende. OTTIMO Bilocale in BELLINZAGO LOMBARDO,in Palazzina DI poche famiglie si colloca al primo piano su due viene venduto al prezzo di €.110.000,00 in Classe energetica (F) IPE 110,25,anno di costruzione2014 le spese condominiali sono minime, il riscaldamento e autonomo,composto da ingresso soggiorno con angolo cottura con terrazzino,dal disimpegno si accede nella zona notte, dove troviamo bagno padronale e camera matrimonuiale,tutti i serramenti sono in legno con doppi vetri e zanzariere, il portoncino di ingresso blindato.L’appartamento e predisposto per un eventuale limpianto di raffrescamento, possibilita di aquistare un posto auto coperto e recintato al prezzo di € 8.000 che viene chiuso dal cancello automatico.Nel paese ci sono tutti i servizi e fermate di mezzi pubblici che portano direttamente in Milano e al capoòinea della MM Linea Verde di GESSATE, come pure al passante ferroviariario di Melzo che porta in Milano alla stazione di Porta Garibaldi per info. F.Matteo 3500878565
Classe energetica F 10,25 kWh/m²a

Caratteristiche

Stato: Abitabile
Anno costruzione: 2012
Piano: 1
Totale piani: 2
Cucina: Angolo cottura
Bagni: 1
Giardino: Nessuno
Camere da letto: 1
Riscaldamento: Autonomo
Climatizzazione: Predisposizione
Arredamento: Semi-arredato
Ascensore: No
Balcone/Terrazzo: Balcone
Box/Posto Auto: Posto auto coperto
Cantina: No
Classe energetica: Classe Energetica F
IPE: 10,25 kWh/m²a

Contatti

Inserzionista MATTEO
Aggiornato il 12 ottobre 2025

No contatti pubblicitari, grazie.

Invia un messaggio all'inserzionista

Casa Da Privato
La tua pubblicità qui, contattaci subito!

© 2005-2026 LaboWeb S.n.c. - P. Iva 10185480968
L'utilizzo del sito è subordinato all'accettazione delle Condizioni Generali, Informativa Privacy e Cookie Privacy - Impostazioni Privacy