ClickCase.it

Attico zona Colli

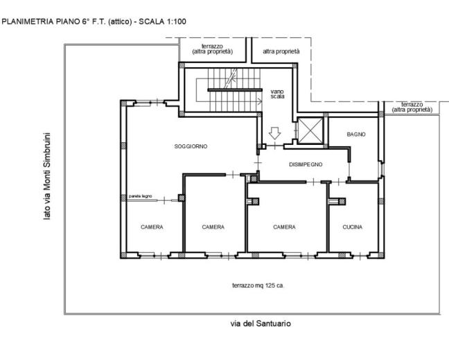
Attico in Vendita da Privato - Via Monti Simbruini 4/a, Pescara

100 m² | 5 locali | 1 bagno | € 187.000 | Segnala abuso

Descrizione

No intermediari. Attico zona Colli vendesi privatamente.
Attico mq 125 ca. ed appartamento 100 mq lordi. Grande potenziale ristrutturando.
Possibile distacco da impianto termico condominiale e verandare parte esterna con vetrate amovibili senza permesso.
Disponibili visite. Astenersi agenzie ed affaristi.
Classe energetica D

Caratteristiche

Stato: Abitabile
Anno costruzione: 1978
Piano: 6
Cucina: Abitabile
Bagni: 1
Giardino: Nessuno
Camere da letto: 3
Riscaldamento: Centralizzato
Climatizzazione: Si
Arredamento: Vuoto
Ascensore: Si
Balcone/Terrazzo: Terrazzo
Box/Posto Auto: No
Cantina: No
Classe energetica: Classe Energetica D

Contatti

Inserzionista Dario
Aggiornato il 17 marzo 2026

No contatti pubblicitari, grazie.

Invia un messaggio all'inserzionista

Casa Da Privato
La tua pubblicitĂ  qui, contattaci subito!

© 2005-2026 LaboWeb S.n.c. - P. Iva 10185480968
L'utilizzo del sito è subordinato all'accettazione delle Condizioni Generali, Informativa Privacy e Cookie Privacy - Impostazioni Privacy