ClickCase.it

Attico in classe A4 ottimo per investimento

Attico in Vendita da Privato - Via Tripoli 20, Empoli

113 m² | 4 locali | 2 bagni | € 389.000 | Segnala abuso

Descrizione

No provvigioni. Costo reale €. 265.000,00

Vendesi attico completamente personalizzabile in fase di ristrutturazione.
Tetto in legno di nuova realizzazione con coibentazione in fibra di legno 16+4. Tetto ventilato.

Impianto di riscaldamento e raffreddamento a pavimento con ventilazione meccanica controllata.
Impianto solare termico per acqua calda sanitaria.
Impianto fotovoltaico da circa 3 kw.
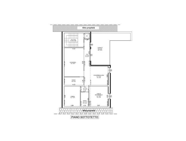
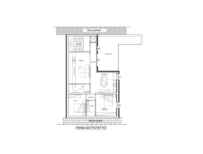
Appartamento composto da soggiorno, cucina, camera matrimoniale, camera, due bagni e disimpegno.

Consegna Febbraio 2026. Ascensore. Posto auto interno. Piccola cantina condominiale. Corte interna condominiale. Termosingolo.

Superficie commerciale 113 mq. utile mq. 96,00 + lastrico solare mq. 33,00


Agevolazioni fiscali €. 124.000,00 in 10 anni
Classe energetica A4 8,00 kWh/m²a

Caratteristiche

Stato: Nuovo/In costruzione
Anno costruzione: 2025
Piano: 4
Totale piani: 4
Cucina: Abitabile
Bagni: 2
Giardino: Nessuno
Camere da letto: 2
Riscaldamento: Autonomo
Climatizzazione: Si
Arredamento: Vuoto
Ascensore: Si
Balcone/Terrazzo: Terrazzo
Box/Posto Auto: Singolo
Cantina: Si
Classe energetica: Classe Energetica A4
IPE: 8,00 kWh/m²a

Contatti

Inserzionista Fabio
Annuncio del 08 novembre 2025

No contatti pubblicitari, grazie.

Invia un messaggio all'inserzionista

La tua pubblicità qui, contattaci subito!

© 2005-2025 LaboWeb S.n.c. - P. Iva 10185480968
L'utilizzo del sito è subordinato all'accettazione delle Condizioni Generali, Informativa Privacy e Cookie Privacy - Impostazioni Privacy