242 m² | 5 locali | € 352.000 | Segnala abuso
 
	                        Descrizione
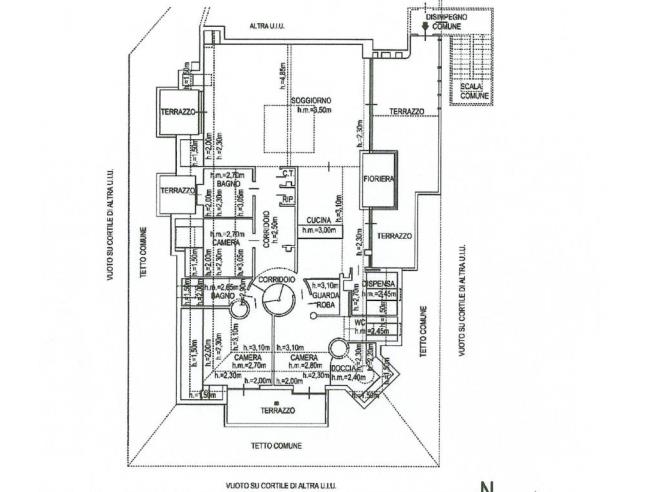
Vendita da privato. PRIVATO propone in vendita al piano primo ed ultimo ampio ATTICO in classe energetica A1, posto all’interno di una palazzina nella zona centrale di Bruino, comoda ai servizi  supermercato, farmacia, bus, mercato e scuole sia primarie che secondarie. L’Attico sviluppa per intero la sua metratura di circa 210 mq su unico piano abitativo, avente un’altezza media di circa 2,95 m, arricchito nella parte di colmo da splendido soppalco costruito interamente in legno  e reso luminoso grazie alla presenza di grande lucernario soprastante. 
L’alloggio  si compone di cucina abitabile, 3 camere da letto, 3 bagni, un terrazzo ed un balcone, è libero su tre lati e gode di una fantastica esposizione che ci garantisce una grande luminosità durante l’intero arco giornaliero. 
L’abitazione dispone di impianto fotovoltaico composto da pannelli da 6 kw per la produzione di energia elettrica, pratica di interscambio già attivata e impianto di aria condizionata con la presenza di split sia nella zona giorno che nelle camere. Il riscaldamento è autonomo alimentato da una caldaia a gas metano.
Non ci sono spese condominiali ed libero subito. Dotato di garage
Classe energetica A1 109,69 kWh/m²a
Caratteristiche

Contatti
Inserzionista MARIANGELA
Annuncio del 23 maggio 2025
No contatti pubblicitari, grazie.
