ClickCase.it

Attico 4 piano ristrutturato lato mare

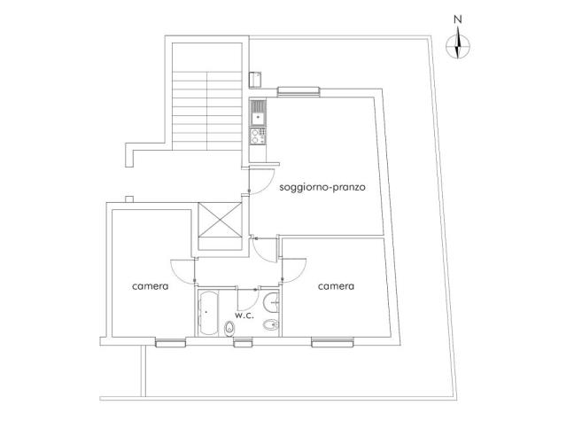
Attico in Vendita da Privato - Via Camillo Benso Conte di Cavour 17, Pescara

68 m² | 3 locali | 1 bagno | € 250.000 | Segnala abuso

Descrizione

Vendita da privato. Attico 4 piano con terrazzo perimetrale su 3 lati in palazzina residenziale ristrutturata nel 2008 con garage autonomo piano terra. Riscaldamento autonomo con caldaia a condensazione ultima generazione 2018. Infissi in PVC ultima generazione 2020 con tapparelle elettriche coibentate. Cappotto interno su solaio (h3m) e pareti esterne. Garage con sezionale Hormann a tenuta ultima generazione. Videocitofono.
Classe energetica E 68,00 kWh/m²a

Caratteristiche

Stato: Ristrutturato
Anno costruzione: 1992
Piano: Ultimo
Totale piani: 4
Cucina: Angolo cottura
Bagni: 1
Giardino: Nessuno
Camere da letto: 2
Riscaldamento: Autonomo
Climatizzazione: Si
Arredamento: Semi-arredato
Ascensore: Si
Balcone/Terrazzo: Terrazzo
Box/Posto Auto: Singolo
Cantina: No
Classe energetica: Classe Energetica E
IPE: 68,00 kWh/m²a

Contatti

Inserzionista Ing. Marino RECCHIUTI
Aggiornato il 11 agosto 2025

No contatti pubblicitari, grazie.

Invia un messaggio all'inserzionista

Casa Da Privato
La tua pubblicità qui, contattaci subito!

© 2005-2025 LaboWeb S.n.c. - P. Iva 10185480968
L'utilizzo del sito è subordinato all'accettazione delle Condizioni Generali, Informativa Privacy e Cookie Privacy - Impostazioni Privacy