ClickCase.it

Aquino Fr Villetta a schiera libera da subito

Villetta a schiera in Vendita da Privato - Via Antonio Gramsci 72, Aquino

140 m² | 3 locali | 2 bagni | € 130.000 | Segnala abuso

Descrizione

Privato vende. IN VENDITA Solo contatti con messaggi WhatsApp
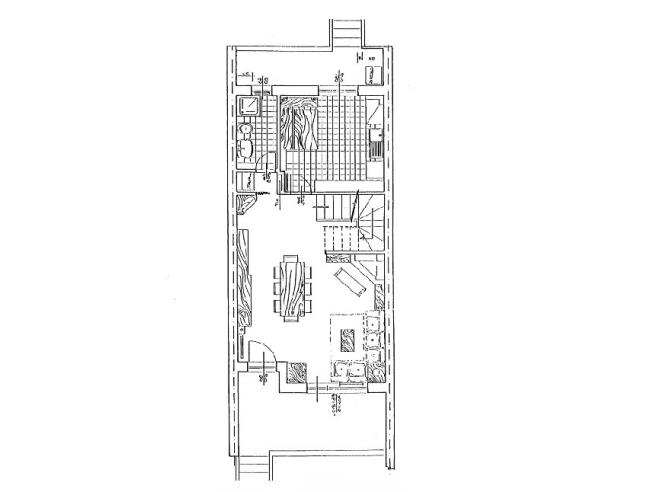
Casa su tre livelli di 140 Mq totali calpestabili interni.
Classe energetica D
ingresso indipendente a piedi e in auto verso il garage con basculante automatizzata.
Viale di ingresso con aiuola e giardinetto, con fontanella.
Sul retro, una prima zona pavimentata di 10 Mq, con lavello e piano di lavoro in marmo
a seguire il giardino di 30 Mq, con acqua e box per rimessa attrezzi da giardino.
Terrazza Balcone 6 Mq avanti e 6 Mq dietro sul primo piano.
2 Balcone avanti 4 Mq, 2 finestre dietro sul secondo piano
Seminterrato con Ambiente Cucina rustica, sollevato da terra di 30 Cm e
coibentato nella parete del muro di contenimento.
Sistema di allarme su tapparelle e volumetrico interno, faro accensione automatica su zona giardino.
Termoautonomo gas metano, indipendente, impostabile su singolo piano con temperature differenti.
Autoclave con riserva di 300 litri attivabile a necessita, per eventi di bassa pressione o per irrigazione.
Pompa automatica di recupero acqua piovana, del piano seminterrato.
Tende da sole montate sul 1 e 2 piano, zanzariere a tutte le finestre.
Classe energetica D

Caratteristiche

Stato: Abitabile
Anno costruzione: 1993
Piano: Su più livelli
Totale piani: 3
Bagni: 2
Giardino: Privato
Camere da letto: 3
Riscaldamento: Autonomo
Climatizzazione: No
Arredamento: Semi-arredato
Ascensore: No
Balcone/Terrazzo: Terrazzo
Box/Posto Auto: Doppio
Cantina: Si
Classe energetica: Classe Energetica D

Contatti

Inserzionista Antonio
Aggiornato il 09 dicembre 2025

No contatti pubblicitari, grazie.

Invia un messaggio all'inserzionista

La tua pubblicità qui, contattaci subito!

© 2005-2025 LaboWeb S.n.c. - P. Iva 10185480968
L'utilizzo del sito è subordinato all'accettazione delle Condizioni Generali, Informativa Privacy e Cookie Privacy - Impostazioni Privacy