ClickCase.it

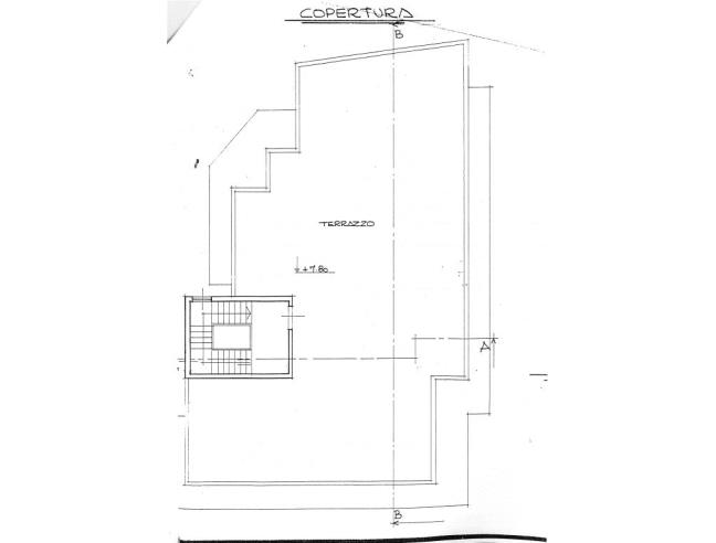
App.to INDIPENDENTE Mq 260 + Cantina Mq 160 + Terrazzo Mq260

Appartamento in Vendita da Privato - Scafati

260 m² | più di 5 locali | 2 bagni | Trattativa Riservata | Segnala abuso

Descrizione

Privato vende. Appartamento INDIPENDENTE di circa 260 mq. - 12,5 vani
+ terrazzo di copertura 260 mq.
+ Cantina e deposito di 160 mq.
+ 3 (tre) posti auto scoperti
VISIONABILE PREVIO APPUNTAMENTO
TRATTATIVA RISERVATA
NO AGENZIE/INTERMEDIARI
Classe energetica G

Video

Caratteristiche

Stato: Abitabile
Piano: 1
Totale piani: 1
Cucina: Abitabile
Bagni: 2
Camere da letto: più di 5
Riscaldamento: Autonomo
Arredamento: Vuoto
Ascensore: No
Balcone/Terrazzo: Terrazzo
Box/Posto Auto: Posto auto scoperto
Cantina: Si
Classe energetica: Classe Energetica G

Contatti

Inserzionista Avv. Di Lallo
Aggiornato il 09 maggio 2025

No contatti pubblicitari, grazie.

Invia un messaggio all'inserzionista

Casa Da Privato
La tua pubblicitĂ  qui, contattaci subito!

© 2005-2025 LaboWeb S.n.c. - P. Iva 10185480968
L'utilizzo del sito è subordinato all'accettazione delle Condizioni Generali, Informativa Privacy e Cookie Privacy - Impostazioni Privacy