ClickCase.it

Appartamento Viale della Repubblica, 28 S. Maria delle Mole

Appartamento in Vendita da Privato - Viale della Repubblica 28, Marino

130 m² | 5 locali | 2 bagni | € 350.000 | Segnala abuso

Descrizione

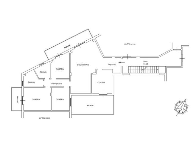
No provvigioni. A Santa Maria delle Mole in posizione centralissima a soli 150 metri dalla stazione ferroviaria, con supermercati, scuole e servizi primari nelle immediate vicinanze, PRIVATO vende appartamento di 130 mq in ottimo stato posto al primo piano e sviluppato su un unico livello.
L’appartamento, ben suddiviso tra zona giorno e zona notte, è composto da un ingresso (con armadio a muro) che conduce ad un ampio salone ed alla cucina abitabile. Attraverso un comodo corridoio si accede alle 3 camere da letto ed ai 2 bagni (uno con vasca e l’altro con doccia). Completano la proprietà un ampio terrazzo e due balconi per complessivi 37 mq, che rendono l’immobile luminoso, funzionale e ben arieggiato.
L’appartamento è dotato di riscaldamento autonomo, condizionatori, infissi in PVC con doppi vetri, inferriate, zanzariere, tende da sole, porta blindata ed è arredato.
C’è la possibilità di acquistare separatamente un box auto di circa 15mq.
Prezzo richiesto €350.000 trattabile dopo visione.
ASSOLUTAMENTE NO AGENZIE.
Classe energetica D 106,00 kWh/m²a

Caratteristiche

Stato: Ristrutturato
Anno costruzione: 1990
Piano: 1
Totale piani: 2
Cucina: Abitabile
Bagni: 2
Camere da letto: 3
Riscaldamento: Autonomo
Climatizzazione: Si
Arredamento: Arredato
Balcone/Terrazzo: Terrazzo
Classe energetica: Classe Energetica D
IPE: 106,00 kWh/m²a

Contatti

Inserzionista Leo
Aggiornato il 14 aprile 2026

No contatti pubblicitari, grazie.

Invia un messaggio all'inserzionista

La tua pubblicità qui, contattaci subito!

© 2005-2026 LaboWeb S.n.c. - P. Iva 10185480968
L'utilizzo del sito è subordinato all'accettazione delle Condizioni Generali, Informativa Privacy e Cookie Privacy - Impostazioni Privacy