ClickCase.it

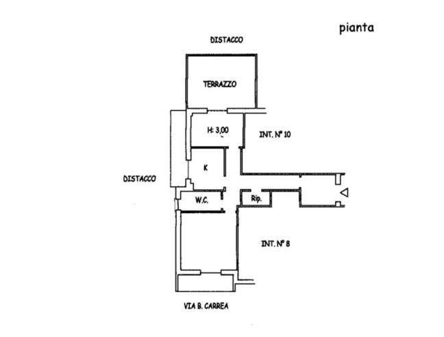
Appartamento via Carrea 4,5 vani 2° piano con ascensore

Appartamento in Vendita da Privato - Zona Sampierdarena, Genova

55 m² | 3 locali | 1 bagno | € 120.000 | Segnala abuso

Descrizione

No agenzia. Vendo privatamente appartamento sito in via Carrea, prime alture di Sampierdarena, in zona tranquilla, comoda per mezzi e negozi.
L'appartamento e` in condizioni molto buone, e` posto al secondo piano, ed e` cosi` composto: ingresso, corridoio, cucina, sala, camera da letto, bagno e dispensa.
La cucina e` dotata di un lungo poggiolo mentre un altro poggiolo e` accessibile dalla camera da letto.
Dalla sala si ha a disposizione un terrazzo al piano di circa 20mq, molto vivibile, dotato di tenda che lo ripara totalmente.
Nell'appartamento e` installato un condizionatore, la porta è blindata.
Lo stabile e` degli anni sessanta ed e` in condizioni molto buone, e` dotato di ascensore.
Il riscaldamento e` centralizzato, la centrale termica del condominio e` stata sostituita l'anno scorso con una caldaia a condensazione. Le spese di amministrazione sono poco al di sotto dei 1000 euro annui.
L'atrio del portone e` stato rifatto un paio di anni fa.

La richiesta e` di 120.000€.

Per informazioni o visite telefonare al numero oppure scrivere una mail a .

NO AGENZIE.
Classe energetica G

Video

Caratteristiche

Stato: Abitabile
Anno costruzione: 1965
Piano: 2
Totale piani: 9
Cucina: Abitabile
Bagni: 1
Giardino: Nessuno
Camere da letto: 1
Riscaldamento: Centralizzato
Climatizzazione: Si
Arredamento: Vuoto
Ascensore: Si
Balcone/Terrazzo: Terrazzo
Box/Posto Auto: No
Cantina: No
Classe energetica: Classe Energetica G

Contatti

Inserzionista Matteo Canessa
Aggiornato il 01 luglio 2025

No contatti pubblicitari, grazie.

Invia un messaggio all'inserzionista

Casa Da Privato
La tua pubblicità qui, contattaci subito!

© 2005-2025 LaboWeb S.n.c. - P. Iva 10185480968
L'utilizzo del sito è subordinato all'accettazione delle Condizioni Generali, Informativa Privacy e Cookie Privacy - Impostazioni Privacy