ClickCase.it

Appartamento Via Bussoleno, 3 - Carmagnola - € 69.000 -

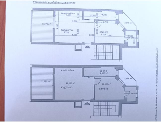
Appartamento in Vendita da Privato - Via Bussoleno 3, Carmagnola

53 m² | 2 locali | 1 bagno | € 69.000 | Segnala abuso

Descrizione

Privato vende. Appartamento climatizzato, al piano quinto, con ascensore, composto da: soggiorno/angolo cottura, bagno, camera da letto con cabina armadio, terrazzo di 12 mq. e balcone lato cortile, completo di cantina. Completamente arredato con aria condizionata, pale a soffitto, frigorifero, lavatrice, piano cottura e forno.
Classe energetica E 252,00 kWh/m²a

Caratteristiche

Stato: Abitabile
Anno costruzione: 1964
Piano: 5
Totale piani: 5
Cucina: Angolo cottura
Bagni: 1
Camere da letto: 1
Riscaldamento: Centralizzato
Climatizzazione: Si
Arredamento: Arredato
Ascensore: Si
Balcone/Terrazzo: Terrazzo
Cantina: Si
Classe energetica: Classe Energetica E
IPE: 252,00 kWh/m²a

Contatti

Inserzionista FAUSTO
Annuncio del 26 febbraio 2026

No contatti pubblicitari, grazie.

Invia un messaggio all'inserzionista

Casa Da Privato
La tua pubblicità qui, contattaci subito!

© 2005-2026 LaboWeb S.n.c. - P. Iva 10185480968
L'utilizzo del sito è subordinato all'accettazione delle Condizioni Generali, Informativa Privacy e Cookie Privacy - Impostazioni Privacy