ClickCase.it

appartamento su due livelli

Appartamento in Vendita da Privato - Zona Centro città, Agrigento

300 m² | più di 5 locali | 3 bagni | Trattativa Riservata | Segnala abuso

Descrizione

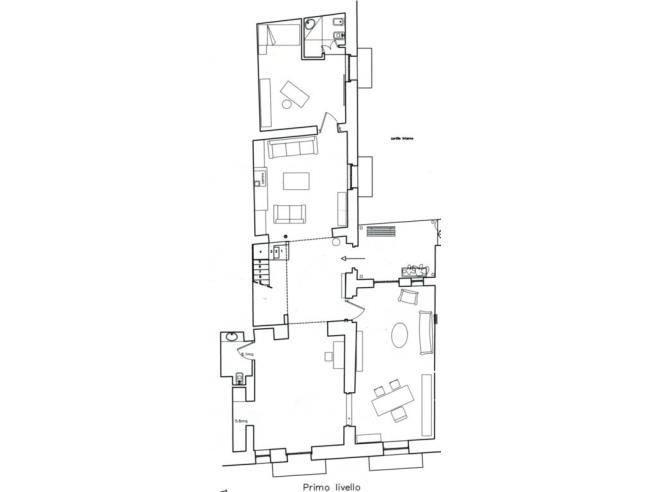
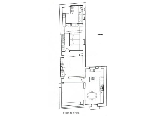
No provvigioni. Trattasi di appartamento con esposizione a sud/ovest, ottimamente ristrutturato e impianti a norma, con ingresso indipendente posto su due livelli per complessivi 300 mq con terrazzi e balconi. Al primo livello (primo piano) due camere con balconi, ognuna con bagno, ampio salone (due camere unite) con balconi e apertura su terrazzo, ampio studio con balcone e apertura su terrazzo. Al secondo livello (secondo piano raggiungibile con una comoda scala in ferro, pedate in legno e comodo passamano) camera da letto con finestra, ampia stanza bagno con finestra, vasca idromassaggio e vano doccia che può ospitare anche una sauna, ampia cucina (circa 28 mq) in muratura, terrazzo di circa 25 mq in continuazione con la cucina. Dalla cucina si può raggiungere un altro terrazzo (una sorta di altana scoperta) dal quale si gode un bel panorama a 360 gradi sul centro storico sino a guardare verso il mare. Al piano terra e sottostante l'immobile si trova una grande cantina/magazzino di circa 50mq che accoglie quattro recipienti per 20.000 mila litri di riserva d'acqua.
Sei vani, tre bagni, tre terrazzi, un magazzino, interamente arredati, con impianto di riscaldamento perfettamente funzionante con caldaia ad acqua; sono inoltre presenti pompe di calore per ogni stanza. Intera pavimentazione in parquet di rovere tranne in cucina, nei terrazzi e nei bagni pavimentati rispettivamente con cotto siciliano e ceramica su disegno.
L'immobile immediatamente abitabile, può essere utilizzato anche come bed and breakfast avendo grande salone di accoglienza, tre camere da letto con bagno e una quarta camera può facilmente predisporsi.
L'immobile può essere divisibile in due appartamenti con ingressi indipendenti per essere abitato anche da due famiglie.
Immobile ubicato nei pressi del Municipio di Agrigento
PREZZO 400.000 € trattabili

Video

Caratteristiche

Stato: Ristrutturato
Piano: Su più livelli
Totale piani: 2
Cucina: Abitabile
Bagni: 3
Giardino: Nessuno
Camere da letto: 3
Riscaldamento: Autonomo
Climatizzazione: Si
Arredamento: Arredato
Ascensore: No
Cantina: Si

Contatti

Inserzionista duemila130@gmail.com
Aggiornato il 20 gennaio 2026

Invia un messaggio all'inserzionista

Casa Da Privato
La tua pubblicità qui, contattaci subito!

© 2005-2026 LaboWeb S.n.c. - P. Iva 10185480968
L'utilizzo del sito è subordinato all'accettazione delle Condizioni Generali, Informativa Privacy e Cookie Privacy - Impostazioni Privacy