ClickCase.it

Appartamento Saletto di Montagnana PD

Appartamento in Vendita da Privato - Borgo Veneto

85 m² | 3 locali | 1 bagno | € 120.000 | Segnala abuso

Descrizione

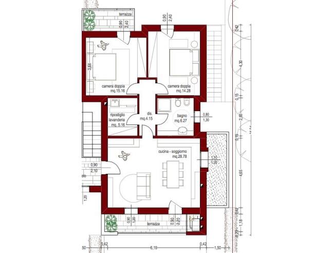
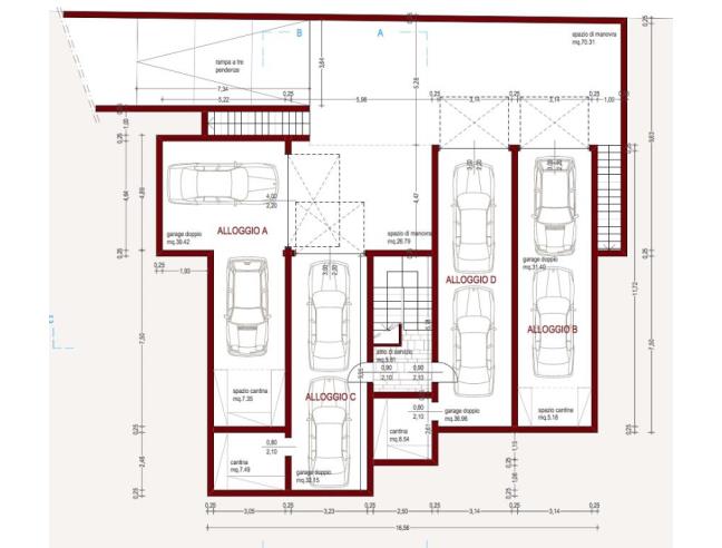
No provvigioni. SALETTO di Montagnana : 500mt dal centro, in palazzina quadrifamigliare, appartamento di nuova costruzione:soggiorno-cucina, disimpegno, bagno, ripostiglio-lavanderia, due stanze da letto doppie garage per due auto
Classe energetica C.
Nelle immediate vicinanze, centro commerciale ed autostrada Valdastico Sud
Classe energetica C

Video

Caratteristiche

Stato: Nuovo/In costruzione
Piano: 1
Cucina: Abitabile
Bagni: 1
Giardino: Privato
Camere da letto: 2
Riscaldamento: Autonomo
Climatizzazione: Predisposizione
Arredamento: Vuoto
Ascensore: No
Balcone/Terrazzo: Terrazzo
Box/Posto Auto: Doppio
Cantina: Si
Classe energetica: Classe Energetica C

Contatti

Inserzionista Paolo
Aggiornato il 30 dicembre 2025

Invia un messaggio all'inserzionista

Casa Da Privato
La tua pubblicitĂ  qui, contattaci subito!

© 2005-2026 LaboWeb S.n.c. - P. Iva 10185480968
L'utilizzo del sito è subordinato all'accettazione delle Condizioni Generali, Informativa Privacy e Cookie Privacy - Impostazioni Privacy