ClickCase.it

Appartamento ristrutturato in Vendita

Appartamento in Vendita da Privato - Zona Marotta, Fano

49 m² | 2 locali | 1 bagno | € 160.000 | Segnala abuso

Descrizione

Vendita da privato. Vendo appartamento zona MARE a Marotta di Fano (Pesaro). ristrutturato TOTALMENTE a NUOVO, con certificazione elettrica, idraulica e termica! in planimetria e' quello a dx, l'altro gia venduto!
muri interni, pavimentazione, porte e finestre nuove, sanitari nuovi con piatto doccia 70x90!
riscaldamenti in ghisa con impianto autonomo e predisposizione clima in tutte le stanze!
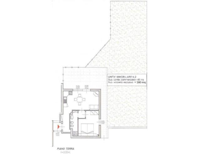
49 mq (piano terra) con cucina/soggiorno, bagno, corte + splendido giardino ESCLUSIVO da 180 mq con ampia corte pavimentata, cantinetta circa 5mq. spese condominiali di sole 50 € ANNO!
vendo a 160.000 euro, ottimo anche con investimento per affitti estivi. l' appartamento e' a meno di 100 metri dalla spiaggia in una delle zone piu' carine di Marotta, con vari servizi nelle vicinanze
Classe energetica F

Video

Caratteristiche

Stato: Ristrutturato
Piano: Piano terra
Totale piani: 2
Cucina: Abitabile
Bagni: 1
Giardino: Privato
Camere da letto: 1
Riscaldamento: Autonomo
Climatizzazione: Predisposizione
Arredamento: Arredato
Ascensore: No
Balcone/Terrazzo: Terrazzo
Box/Posto Auto: No
Cantina: Si
Classe energetica: Classe Energetica F

Contatti

Inserzionista Mario
Aggiornato il 10 agosto 2025

No contatti pubblicitari, grazie.

Invia un messaggio all'inserzionista

Casa Da Privato
La tua pubblicità qui, contattaci subito!

© 2005-2025 LaboWeb S.n.c. - P. Iva 10185480968
L'utilizzo del sito è subordinato all'accettazione delle Condizioni Generali, Informativa Privacy e Cookie Privacy - Impostazioni Privacy