ClickCase.it

APPARTAMENTO RISTRUTTURATO C.SO TARANTO, 69 MQ

Appartamento in Vendita da Privato - Corso Taranto 70, Torino

69 m² | 2 locali | 1 bagno | € 99.000 | Segnala abuso

Descrizione

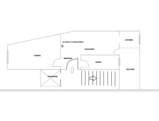
Vendita da privato. PRIVATO VENDE, NELLA PARTE BELLA DI BARRIERA, APPARTAMENTO TERZO PIANO CON ASCENSORE LIBERO DA SUBITO IN CORSO TARANTO,  70  SCALA B , DI  MQ.69,
COMPOSTO DA INGRESSO, CAMERA DA LETTO, SOGGIORNO LIVING, CUCININO, E BAGNO. BALCONE _APPARTAMENTO SOTTOPOSTO A COMPLETA E RECENTE RISTRUTTURAZIONE CON COLORI E FINITURE DI PREGIO.
IMPIANTO ELETTRICO CON RELE’  E PULSANTI A PIÙ PUNTI E CON TAPPARELLE ELETTRICHE;IMPIANTO GAS NUOVISSIMO RISALE ALL’ULTIMA RISTRUTTURAZIONE;
IMPIANTO ACQUA NUOVO RISALE ALL’ULTIMA RISTRUTTURAZIONE CON CALDAIA GAS PER PRODUZIONE ACQUA CALDA, E PORTA BLINDATA NUOVA.
INGRESSO CHE DA SUL SOGGIORNO LIVING, CON CONTROSOFFITTATURA E FARETTI, SOGGIORNO CON ARREDAMENTO COLOR ROVERE WENGÈ E PARETE IN PIETRA CON ATTACCO E STAFFA PER TV;
CAMERA DA LETTO CON PAVIMENTO NUOVO IMPIANTO ELETTRICO NUOVO E TAPPARELLE ELETTRICHE;
CUCININO COMPLETAMENTE RISTRUTTURATO E ARREDATO SU MISURA COMPLETO DI ELETTRODOMESTICI
(CAPPA A CAMINO, FORNO E
LAVASTOVIGLIE)
ALL’INTERNO DEL CUCININO VI È UNA COMODA FINESTRA CHE DA LUCE A TUTTA LA CASA;
BAGNO  RISTRUTTURATO E BEN ARREDATO CON MOBILE SOTTO LAVABO, LAVABO E SPECCHIERA CON FARETTI, PIASTRELLE MOSAICO COLOR BIANCO/AZZURRO BOX DOCCIA IN ALLUMINIO E VETRO E DIVIDE IL TUTTO UNA PARETE IN VETROCEMENTO;
DAL SOGGIORNO  SI ACCEDE MEDIANTE PORTA FINESTRA AL BALCONE ESTERNO DI CIRCA 4 X 1.5 METRI
DA EVIDENZIARE:
LA COMODA CANTINA ALLA QUALE SI PUO ACCEDERE PER CARICO E SCARICO MERCI  DAL CORTILE CHIUSO DA CANCELLO  ELETTRICO AUTOMATICO.
SPESE (50,00 CIRCA MENSILI PER CONDOMINIO COMPRESO ANCHE LA PORTINERIA E 115,00 CIRCA MENSILI PER I MESI DI
RISCALDAMENTO CENTRALIZZATO)
LA ZONA E' COMODA A TUTTI I SERVIZI E VICINO A CENTRI COMMERCIALI,  OSPEDALE, SCUOLA, CHIESA,   NONCHÉ TANGENZIALE,  E VICINO AI COMUNI DI SAN MAURO T.SE , SETTIMO T.SE .
INOLTRE SONO  GIA' IN PROGRAMMA ALTRI LAVORI ALLA METROPOLITANA CHE RENDERANNO QUESTA ZONA ANCOR PIU' COMODA.
ASTENERSI PERDITEMPO E AGENZIE
CHIEDERE DI
GENNARO TEL.
Classe energetica E

Caratteristiche

Stato: Ristrutturato
Anno costruzione: 1965
Piano: 3
Totale piani: 7
Cucina: Cucinotto
Bagni: 1
Giardino: Nessuno
Camere da letto: 1
Riscaldamento: Centralizzato
Climatizzazione: Si
Arredamento: Semi-arredato
Ascensore: Si
Balcone/Terrazzo: Balcone
Box/Posto Auto: No
Cantina: Si
Classe energetica: Classe Energetica E

Contatti

Inserzionista Gennaro
Aggiornato il 12 agosto 2025

No contatti pubblicitari, grazie.

Invia un messaggio all'inserzionista

Casa Da Privato
La tua pubblicità qui, contattaci subito!

© 2005-2026 LaboWeb S.n.c. - P. Iva 10185480968
L'utilizzo del sito è subordinato all'accettazione delle Condizioni Generali, Informativa Privacy e Cookie Privacy - Impostazioni Privacy