ClickCase.it

APPARTAMENTO RISTRUTTURATO con IMPIANTI CERTIFICATI CORSICO

Appartamento in Vendita da Privato - Corsico

45 m² | 2 locali | 1 bagno | € 150.000 | Segnala abuso

Descrizione

No intermediari. Per ulteriori informazioni o per fissare una visita, contattare esclusivamente tramite messaggio WhatsApp. Gli appuntamenti si effettuano esclusivamente il sabato. NO PERDITEMPO, NO AGENZIE.SOLO PRIVATI.

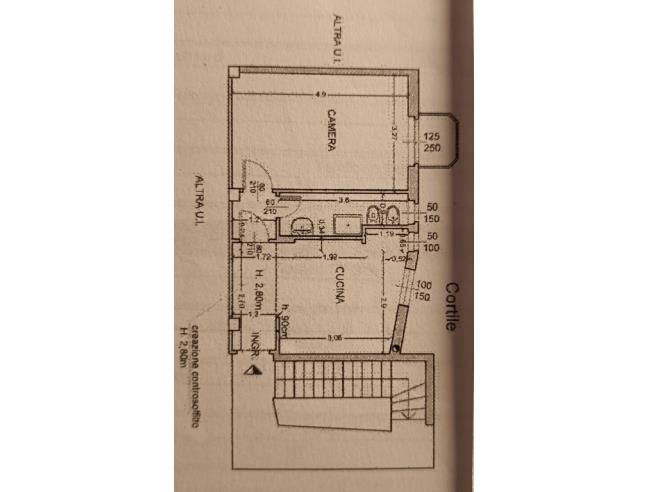
In vendita bilocale composto da cucina/soggiorno, bagno finestrato, ampia camera da letto situato al 1° piano di una palazzina di 3 piani senza ascensore in via Vincenzo Monti, Corsico. Zona tranquilla e ben collegata: a breve distanza dalla nuova fermata M4 San Cristoforo, comoda per raggiungere Milano centro e l’aeroporto di Linate, e servita da autobus diretti verso M1 (Bisceglie) e M2 (Romolo). A soli 200 metri dall’appartamento sono disponibili anche collegamenti bus che permettono di raggiungere comodamente la zona dei Navigli di Milano. A 500 metri si trova un supermercato Esselunga, oltre a tutti i servizi e negozi del centro di Corsico. Inoltre, l’immobile si trova a pochi minuti da Assago Forum, importante centro per eventi, congressi, concerti e attività sportive.

Appartamento libero a partire da SETTEMBRE 2026.

Caratteristiche principali:

*Ristrutturazione completa nel 2020 con impianti certificati.
* Porta d'ingresso blindata.
*Impianto elettrico e gas nuovi.
* Riscaldamento centralizzato con caldaia a condensazione con termovalvole e contabilizzatori (anno installazione 2023).
*Condizionamento con pompa di calore caldo/freddo.
*Bagno finestrato con box doccia doppio.
*Cancelletti di sicurezza installati a tutti gli infissi.
*Zanzariere su tutte le finestre.
*Fibra ottica con impianto per connessione Internet veloce.
*Predisposizione antenna parabolica.
*Abbassamento del soffitto con realizzazione di un ripostiglio in quota, accessibile tramite sportello in camera da letto.
*Cantina di proprietà nel locale cantine condominiale.

Arredamento incluso:

L’appartamento viene venduto completamente arredato:

*Cucina/Soggiorno attrezzata con mobili moderni.
*Camera da letto completa di letto e armadi.

Contesto:
L’appartamento gode di un’esposizione interna sul cortile, che lo rende particolarmente tranquillo e silenzioso.

Perchè sceglierlo?

* Posizione strategica, vicina a Milano, al nuovo M4 e a Assago Forum.
* Immobile pronto da abitare, senza necessità di lavori.
* Arredamento e dotazioni moderne incluse.
* Ideale per chi cerca comfort, praticità e/o un investimento sicuro.

Un appartamento chiavi in mano pensato per single, giovane coppia, o per chi desidera vivere subito in un contesto ben servito, con collegamenti rapidi verso Milano e tutte le comodità a portata di mano.
Classe energetica G

Caratteristiche

Stato: Ristrutturato
Anno costruzione: 1960
Piano: 1
Totale piani: 3
Cucina: Abitabile
Bagni: 1
Giardino: Nessuno
Camere da letto: 1
Riscaldamento: Centralizzato
Climatizzazione: Si
Arredamento: Arredato
Ascensore: No
Balcone/Terrazzo: Balcone
Box/Posto Auto: No
Cantina: Si
Classe energetica: Classe Energetica G

Contatti

Inserzionista Alessandra
Aggiornato il 15 marzo 2026

No contatti pubblicitari, grazie.

Invia un messaggio all'inserzionista

Casa Da Privato
La tua pubblicità qui, contattaci subito!

© 2005-2026 LaboWeb S.n.c. - P. Iva 10185480968
L'utilizzo del sito è subordinato all'accettazione delle Condizioni Generali, Informativa Privacy e Cookie Privacy - Impostazioni Privacy