ClickCase.it

Appartamento Nuovo METRO A Cornelia, Posto Auto Incluso

Appartamento in Vendita da Privato - Zona Aurelio, Roma

65 m² | 3 locali | 1 bagno | € 300.000 | Segnala abuso

Descrizione

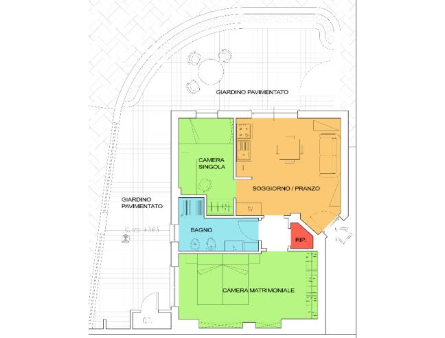
No intermediari. Appartamento Trilocale NUOVO, zona AURELIO, VIA GREGORIO XI, a soli 3 minuti dalla fermata della METRO A CORNELIA. Soggiorno con angolo cottura, bagno arredato, camera matrimoniale, cameretta, ripostiglio. Molto rifinito: rivestimento in parquet naturale su tutti gli ambienti, impianto d'allarme, impianto condizionamento aria caldo/freddo, impianto riscaldamento autonomo, finestre dotate di grate e zanzariere, + 60 mq di giardino pavimentato con ingresso indipendente.
Vendita Privata NESSUNA PROVVIGIONE. NO AGENZIE.
CEP Costruzioni Edili Presta s.n.c. | VENDITA APPARTAMENTI ROMA
Classe energetica C

Caratteristiche

Stato: Nuovo/In costruzione
Piano: Piano terra
Cucina: Angolo cottura
Bagni: 1
Giardino: Privato
Camere da letto: 2
Riscaldamento: Autonomo
Climatizzazione: Si
Arredamento: Semi-arredato
Ascensore: No
Balcone/Terrazzo: Terrazzo
Box/Posto Auto: Singolo
Cantina: No
Classe energetica: Classe Energetica C

Contatti

Inserzionista Pierpaolo
Aggiornato il 07 ottobre 2025

No contatti pubblicitari, grazie.

Invia un messaggio all'inserzionista

Casa Da Privato
La tua pubblicitĂ  qui, contattaci subito!

© 2005-2025 LaboWeb S.n.c. - P. Iva 10185480968
L'utilizzo del sito è subordinato all'accettazione delle Condizioni Generali, Informativa Privacy e Cookie Privacy - Impostazioni Privacy