105 m² | più di 5 locali | 2 bagni | € 40.000 | Segnala abuso
 
	                        Descrizione
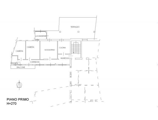
No intermediari. Alloggio al 1 piano di piccolo condominio di soli due piani di mq 105. Ampio terrazzo di 45 mq. Ingresso, cucina, 3 camere da letto, bagno con doccia, bagno con vasca. 2 garage. Cantina. Ampio giardino indipendente ed esclusivo con ingresso autonomo. Riscaldamento autonomo. Prezzo trattabile.
Caratteristiche
Contatti
Inserzionista Stefano
Aggiornato il 13 luglio 2025
No contatti pubblicitari, grazie.
 
	                         
	                         
	                         
	                         
	                        