ClickCase.it

appartamento

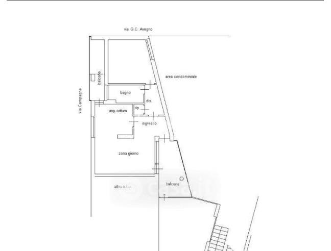
Appartamento in Vendita da Privato - Via Capitano di Vascello Gian Carlo Avegno 7, Meina

68 m² | 2 locali | 1 bagno | Trattativa Riservata | Segnala abuso

Descrizione

Vendita da privato. appartamento ammobiliato in centro a Meina vicinanze lago posto auto condominiale cantina, ideale anche per investimento.
Classe energetica F 271,00 kWh/m²a

Caratteristiche

Stato: Ristrutturato
Anno costruzione: 1965
Piano: Piano rialzato
Totale piani: 4
Cucina: Cucinotto
Bagni: 1
Giardino: Comune
Camere da letto: 1
Riscaldamento: Autonomo
Climatizzazione: No
Arredamento: Arredato
Ascensore: Si
Balcone/Terrazzo: Terrazzo
Box/Posto Auto: Posto auto scoperto
Cantina: Si
Classe energetica: Classe Energetica F
IPE: 271,00 kWh/m²a

Contatti

Inserzionista edvige berettini
Aggiornato il 28 febbraio 2026

No contatti pubblicitari, grazie.

Invia un messaggio all'inserzionista

La tua pubblicitĂ  qui, contattaci subito!

© 2005-2026 LaboWeb S.n.c. - P. Iva 10185480968
L'utilizzo del sito è subordinato all'accettazione delle Condizioni Generali, Informativa Privacy e Cookie Privacy - Impostazioni Privacy