ClickCase.it

APPARTAMENTO INDIPENDENTE CON POSTO AUTO E CORTILE

Appartamento in Vendita da Privato - Zeme

89 m² | 5 locali | 1 bagno | € 35.000 | Segnala abuso

Descrizione

Vendita da privato. APPARTAMENTO INDIPENDENTE CON POSTO AUTO E CORTILE, DA RISTRUTTURARE.
Località: Zeme (Pavia)
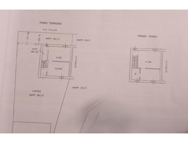
superficie: 89 mq su due piani
caratteristiche: 2 camere da letto
1 bagno
cucina abitabile
sala spaziosa
sotto scala/ripostiglio
posto auto riservato
cortile ampio
striscia di giardino
Soluzione indipendente senza spese condominiali, ideale per chi cerca tranquillità e vuole personalizzare la propria casa, a 10 minuti da Mortara. Immobile da ristrutturare, ottima opportunità per famiglie, giovani coppie, se di proprio gradimento ci sono compresi lampadari e mobili per la sala come in foto. contattare via email o chat e chiamate whatsapp.
Classe energetica G

Caratteristiche

Stato: Da ristrutturare
Totale piani: 2
Cucina: Abitabile
Bagni: 1
Camere da letto: 2
Riscaldamento: Autonomo
Arredamento: Semi-arredato
Box/Posto Auto: Posto auto scoperto
Classe energetica: Classe Energetica G

Contatti

Inserzionista cLAUDIO
Aggiornato il 20 marzo 2026

No contatti pubblicitari, grazie.

Invia un messaggio all'inserzionista

Casa Da Privato
La tua pubblicitĂ  qui, contattaci subito!

© 2005-2026 LaboWeb S.n.c. - P. Iva 10185480968
L'utilizzo del sito è subordinato all'accettazione delle Condizioni Generali, Informativa Privacy e Cookie Privacy - Impostazioni Privacy