Appartamento in villa

Diamante, Cirella - Vendita da Privato

  • Villa in Vendita da Privato - Zona Cirella, Diamante

    141 m² | 4 locali | 2 bagni | € 178.000

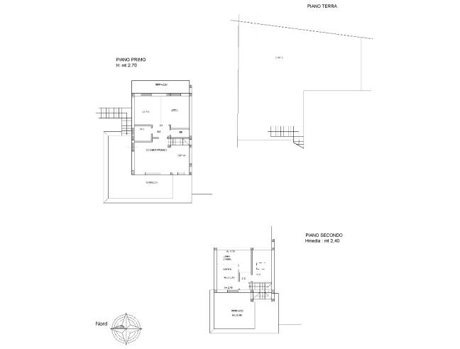
    Vendita da privato. Porzione di villa in ottime condizioni composta da: giardino curato con doppio impianto di irrigazione, con spazio per tre auto, cancelletto pedonale e cancello scorrevole carrabile, doccia con acqua calda riparata alla vista, lavatoio e vano sottoscala; primo piano con ampio terrazzo dotato di tenda da sole, confortevole salone living con cucina, due camere da letto matrimoniali con balcone, bagno e locale lavanderia; mediante comoda scala interna si accede al secondo piano mansardato, con ampio terrazzo, grande camera da letto (almeno 4 letti) e bagno.
    L'appartamento è fresco, luminoso e confortevole. Porta blindata, infissi in alluminio con vetrocamera e zanzariere, tutte le camere sono dotate di climatizzatori efficienti, ed i terrazzi dispongono di impianto idrico. Possibilità di vendita con arredi, di buona fattura e come nuovi. Dista circa 300 metri da lidi belli ed attrezzati e dalla spiaggia libera. Dalla Località Piantine (Riviera Azzurra), il centro di Cirella è raggiungibile anche a piedi in circa 15 minuti.


Caratteristiche
Stato: Abitabile
Anno costruzione: 2007
Piano: 1
Totale piani: 2
Cucina: Abitabile
Bagni: 2
Giardino: Privato
Camere da letto: 3
Riscaldamento: Assente
Climatizzazione: Si
Arredamento: Arredato
Balcone/Terrazzo: Terrazzo
Box/Posto Auto: Doppio
Cantina: No

Contatti

No contatti pubblicitari, grazie.

Invia un messaggio all'inserzionista

Inserzionista GIUSEPPE
Aggiornato il 10 dicembre 2025

Segnala abuso